

- Prix
- 228 509 €
Maison neuve • La Ville-Dieu-du-Temple (82)
- Nom et prix
- Terrain à bâtir La Ville-Dieu-du-Temple (82290) • 228 509 €
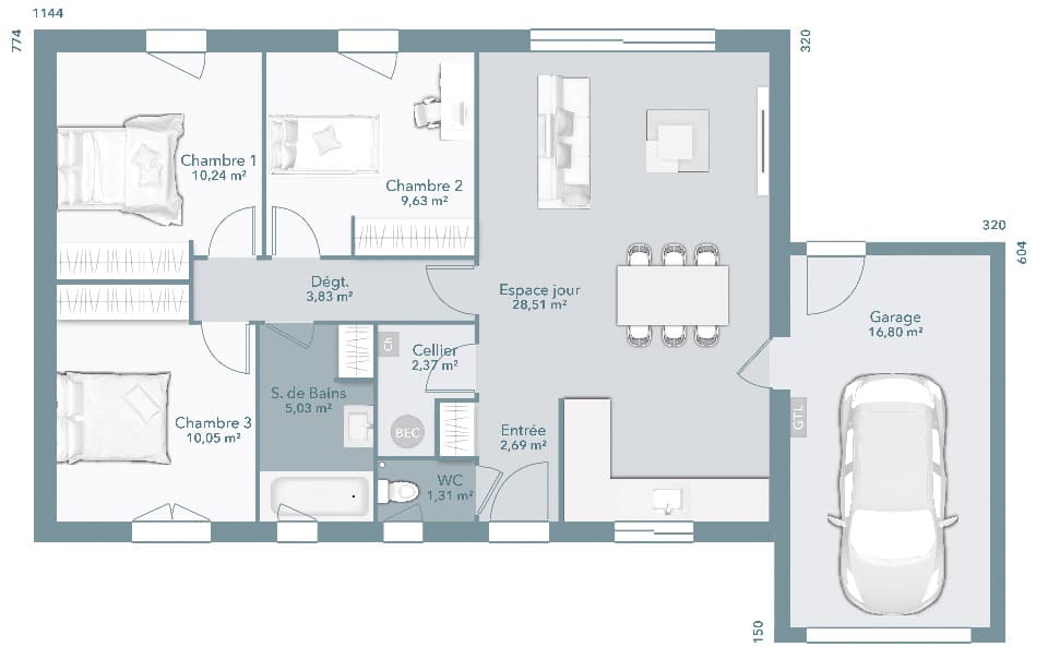
'Votre agence Maisons France Confort d'Aucamville vous propose ce beau projet maison + terrain à 8 min de Albefeuille Lagarde De plain-pied, ce plan de maison de 110 m² est construit en L pour garantir des espaces jour et nuit parfaitement distincts. L'entrée s'ouvre sur une pièce de vie de 43 m² composée d'un salon, de la cuisine et de la salle à manger. Cet espace bénéficie de beaucoup de lumière naturelle avec 2 baies disposées en face à face. Pour la configuration de la partie nuit, c'est un couloir qui dessert 3 chambres d'un côté et de l'autre, une salle de bains et une suite parentale en option, avec dressing et salle d'eau. Cette maison dispose également d'un garage intégré de 15 m², totalement accessible de la maison. Vous avez le coup de coeur pour cette maison fonctionnelle, lumineuse et organisée, contactez nous ! prix: 228.509€ hf Pour toutes informations, contactez l'agence MAISONS FRANCE CONFORT d'Aucamville au 05.34.43.84.38'









