logo de nos-terrains.com

2003 maisons neuves à vendre à Labastide st sernin (31)

Résultats de recherche

Maison neuve - Terrain à bâtir Saint-Loup-Cammas (31140) à Saint-Loup-Cammas (31), prix 242 820 €
242 820 €
81 m²
2998 €/m²

Maison neuveSaint-Loup-Cammas (31)

Votre agence Maisons France Confort d'AUCAMVILLE vous propose ce beau projet maison + terrain à 2 minutes de ST LOUP CAMMAS dans la Haute-Garonne. Le modèle PPGA de 80m² avec garage accolé en option est une maison à la ligne épurée et moderne en RE 2020. Cette maison est parfaitement fonctionnelle et dispose de nombreux atouts : 3 chambres, une pièce vie de près de 30m² et une salle de bains. Elle se trouve sur une parcelle de 349 m² à 2 minutes des commodités et à 10 minutes de Toulouse. Pour toutes informations, contactez l'agence MAISONS FRANCE CONFORT d'AUCAMVILLE . PRIX : 242 820 € HF

Proposé par Maisons FRANCE CONFORT - Béziers

Maison neuve - Terrain à bâtir Saint-Loup-Cammas (31140) à Saint-Loup-Cammas (31), prix 256 072 €
256 072 €
83 m²
3085 €/m²

Maison neuveSaint-Loup-Cammas (31)

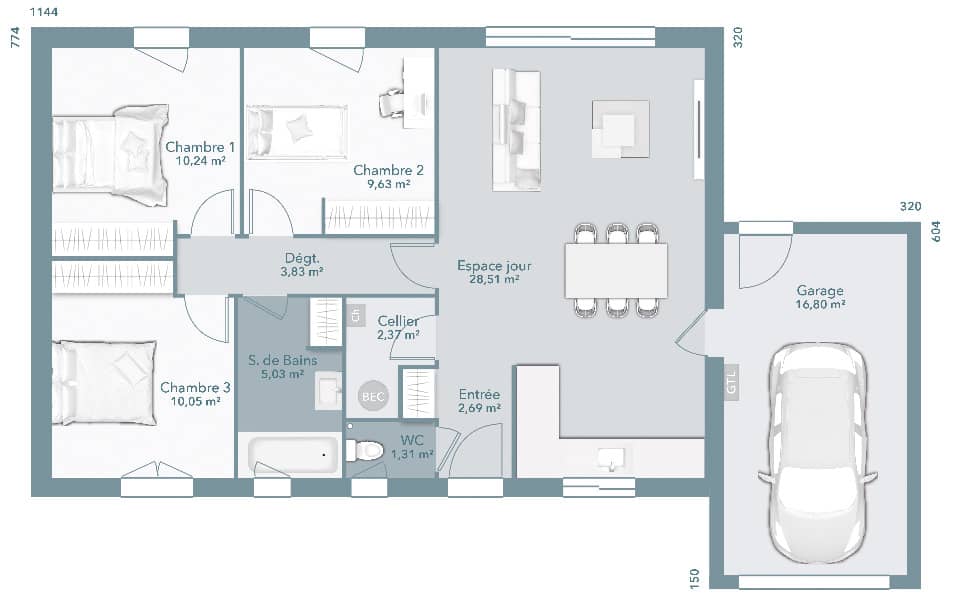
L'agence Maisons France Confort d'AUCAMVILLE - NOUVEAU - Projet de construction RE 2020 avec cette maison de 83m² à 2 minutes de ST LOUP CAMMAS . Idéale pour un premier investissement, cette maison neuve est entièrement personnalisable. Le modèle présenté est ACTUA 83, conception traditionnelle de plain-pied. Il comporte une entrée, un séjour/cuisine de 38m², un cellier, un WC et un espace nuit composé de 3 chambres et une salle de bains. Le garage de 16m² en option est accolé à la maison et accessible par la cuisine. Au coeur de la campagne toulousaine, sur une parcelle constructible de 349 m², vous profiterez des toutes les commodités à seulement 2 minutes. Vous pourrez accéder à Toulouse en 10 minutes. Votre conseiller de l'agence Maisons France Confort d'AUCAMVILLE est à votre disposition PRIX : 256 072 € HF

Proposé par Maisons FRANCE CONFORT - Béziers

Maison neuve - Terrain à bâtir Saint-Loup-Cammas (31140) à Saint-Loup-Cammas (31), prix 290 751 €
290 751 €
95 m²
3061 €/m²

Maison neuveSaint-Loup-Cammas (31)

L'agence Maisons France Confort d'AUCAMVILLE a conçu pour vous cette maison neuve de 95m² à 2 minutes de ST LOUP CAMMAS . OPTIMA 95 E GI-SD est une construction traditionnelle à étage, fonctionnelle et économe que vous pouvez totalement personnaliser. Elle se compose d'une entrée, d'un espace de vie lumineux avec cuisine ouverte de 33m², d'un cellier et WC. A l'étage, 4 chambres avec la possibilité de faire une suite parentale, une salle de bains et WC. Le garage de 15m² est intégré à la maison et accessible par la cuisine. Cette habitation est présentée sur une parcelle constructible de 349 m². Dans un cadre de vie idéal, à proximité des commodités et 10 minutes de Toulouse. Contactez l'agence Maisons France Confort d'AUCAMVILLE PRIX : 290 751 € HF

Proposé par Maisons FRANCE CONFORT - Béziers

Maison neuve - Terrain à bâtir Castelginest (31780) à Castelginest (31), prix 362 761 €
362 761 €
110 m²
3298 €/m²

Maison neuveCastelginest (31)

Conçue autour d'un volume à étage, cette belle maison familiale de 112 m² saura vous séduire par son architecture simple et soignée. Cette villa est composée au rez-de-chaussée d'un grand espace de vie d'environ lumineux avec ses nombreuses menuiseries, d'une arrière cuisine communiquant avec un garage de 17 m² et d'une suite parentale avec dressing et salle d'eau. A l'étage, vous trouverez 3 chambres avec placard et une spacieuse salle de bain. Cette maison est à construire dans le département du Tarn, l'Aude, l'Hérault, la Haute-Garonne ainsi que les Pyrénées Orientales par Oc résidences, votre constructeur sur mesure en Midi Pyrénées et en Languedoc.

Proposé par OC RESIDENCES

Maison neuve - Terrain à bâtir Castelginest (31780) à Castelginest (31), prix 331 595 €
331 595 €
98 m²
3384 €/m²

Maison neuveCastelginest (31)

Nos architectes ont conçu ce modèle pour vous. Cette maison résolument contemporaine, saura vous séduire par son architecture innovante et sa pergola bioclimatique qui lui donneront un design unique. Elle possède deux espaces bien distincts avec un espace jour de 44 m² et un espace nuit avec 3 belles chambres dont une suite parentale, un WC Indépendant et une salle de bains confortable. N'attendez plus et venez construire votre projet de vie par Oc résidences, votre constructeur sur mesure en Occitanie.

Proposé par OC RESIDENCES

Maison neuve - Terrain à bâtir Castelginest (31780) à Castelginest (31), prix 292 300 €
292 300 €
88 m²
3322 €/m²

Maison neuveCastelginest (31)

Le modèle ZEPHYR 87 m² est une maison aux lignes sobres et authentiques qui saura vous séduire par son aménagement intérieur conçu pour optimiser votre confort. Ce pavillon vous offre trois chambres, une salle de bains, un bel espace vie de plus de 41 m² et un garage de 14 m², facilement transformable en une quatrième chambre. Cette maison sera répondre aux normes accessibilité. Votre projet de vie est à construire dans le département du Tarn, l'Aude, l'Hérault, la Haute-Garonne ainsi que les Pyrénées Orientales par Oc résidences, votre constructeur sur mesure en Occitanie.

Proposé par OC RESIDENCES

Maison neuve - Terrain à bâtir Castelginest (31780) à Castelginest (31), prix 342 134 €
342 134 €
112 m²
3055 €/m²

Maison neuveCastelginest (31)

Découvrez les charmes de LA LIBECCIO. Cette belle maison de plain-pied, qui saura vous séduire par son architecture en forme de L, son look tendance et son aménagement intérieur. Son espace de vie traversant et lumineux de 48 m² vous offre un accès direct sur votre future terrasse couverte de 12 m². La partie nuit est composée de 3 chambres avec de beaux rangements, d'une salle de bain et de l'autre côté de la Pièce à vivre, une belle suite parentale avec dressing et salle d'eau privative. Un grand garage de 22 m² vous donnera du confort de rangement tout en ayant la possibilité de garer votre voiture. OC RESIDENCES, constructeur de maisons individuelles depuis bientôt 40 ans, réalise votre rêve de maison.

Proposé par OC RESIDENCES

Maison neuve - Projet de construction d'une maison 88 m² avec terrain à PECHBONNIEU (31) au prix de 307700€. à PECHBONNIEU (31), prix 135 700 €
135 700 €
88 m²
1542 €/m²

Maison neuvePECHBONNIEU (31)

Construisons ensemble votre maison dans un environnement calme et agréable à vivre sur ce terrain (apporté par notre partenaire foncier sous réserve de disponibilité), d’une superficie de 757 m². D'un style épuré, fonctionnel et élégant, cette maison est modifiable et personnalisable comme tous les modèles Villas et Maisons de France. Le modèle UP, présenté ici, dispose d'une surface habitable de 88 m², d'un RDC intégralement dédié à l'espace de vie et comprenant un grand séjour lumineux, agrémenté d'une cuisine ouverte ou traditionnelle avec cellier accolé. L'aménagement intérieur est facilement modulable et de nombreux rangements sont possibles. A l'étage, 3 chambres de 10 à 12 m² et une salle de bain confortable composent le coin nuit. Avec un process de haute qualité environnementale, Villas et Maisons de France conçoit et construit votre maison sur-mesure tout en réduisant de façon significative son empreinte carbone. RE 2020, étiquette énergie A, tri sélectif et valorisation des déchets sont garantis. Notre label Properméa atteste de la qualité de notre traitement de l’étanchéité à l’air. Vous bénéficierez aussi d'un accompagnement pour l’ensemble de vos démarches, de l’accord de prêt à l’obtention du permis de construire en passant par l’acte authentique d’acquisition du terrain par votre chef de projet. Enfin, notre Contrat de Construction de Maison Individuelle CCMI vous permettra de bénéficier de toutes ses garanties et assurances. Choisissez la sécurité d'un grand nom et la proximité d'une entreprise régionale, contacter votre chef de projet Bulent COSKUN au 06 12 29 23 50, spécialiste de la Maison Individuelle avec process de haute qualité environnementale en Occitanie. Prix avec assurance dommages-ouvrage comprise, VRD non compris, terrain viabilisé, frais de notaire non compris, frais divers non compris. Terrain sélectionné et vu pour vous sous réserve de disponibilité et au prix indiqué par notre partenaire foncier. Plans contractuels, visuels non contractuels. Cette annonce a été créée et diffusée avec le logiciel VITAHOME. Contactez Bulent COSKUN au 06 12 29 23 50 ou au 05 34 48 00 00 (Villas et Maisons de France).

Proposé par VILLAS ET MAISONS DE FRANCE

Maison neuve - Projet de construction d'une maison 73 m² avec terrain à PECHBONNIEU (31) au prix de 289300€. à PECHBONNIEU (31), prix 117 300 €
117 300 €
73 m²
1607 €/m²

Maison neuvePECHBONNIEU (31)

Nous construisons votre maison sur-mesure dans un environnement calme sur ce terrain (apporté par notre partenaire foncier sous réserve de disponibilité), d’une superficie de 757 m² situé à PECHBONNIEU. D'un style sobre mais tendance, cette maison reste modifiable et personnalisable comme tous les modèles Villas et Maisons de France. Dans sa version catalogue, ce modèle dispose de 73 m² de surface habitable. Fonctionnel, son aménagement intérieur comprend un coin nuit avec 2 belles chambres entre 11 et 12m² complétées d'une salle de bain de 4,30 m². La pièce à vivre, lumineuse, de près de 40 m², comprend salon et salle à manger. La cuisine ouverte prolonge ce sentiment de confort et prévoit des rangements significatifs dans le cellier. Notre bureau d’étude spécialisé établit vos plans uniques en nos locaux, sans délai et vous accueille sur rendez-vous pour découvrir les coulisses de la conception de votre maison. Villas et Maisons de France vous apporte la sécurité du Contrat de Construction de Maison Individuelle (CCMI), en vous délivrant Garantie de Livraison, Assurance Décennale et Dommages Ouvrage, Garantie de Parfait Achèvement et de Bon Fonctionnement. Nos équipes commerciales vous accompagnent pour l’accord de prêt, l’obtention du permis de construire et l’acte authentique d’acquisition du terrain. Enfin, constructeur certifié Properméa et avec un process de haute qualité environnementale, Villas et Maisons de France se distingue par d'excellentes performances environnementales et énergétiques en respectant un cahier des charges contraignant ! Faites le choix de la qualité, de la personnalisation et de l'innovation, Contactez Bulent COSKUN au 06 12 29 23 50 . Prix avec assurance dommages-ouvrage comprise, VRD non compris, terrain viabilisé, frais de notaire non compris, frais divers non compris. Terrain sélectionné et vu pour vous sous réserve de disponibilité et au prix indiqué par notre partenaire foncier. Plans contractuels, visuels non contractuels. Cette annonce a été créée et diffusée avec le logiciel VITAHOME. Contactez Bulent COSKUN au 06 12 29 23 50 ou au 05 34 48 00 00 (Villas et Maisons de France).

Proposé par VILLAS ET MAISONS DE FRANCE

Maison neuve - Projet de construction d'une maison 73 m² avec terrain à PECHBONNIEU (31) au prix de 287200€. à PECHBONNIEU (31), prix 117 300 €
117 300 €
73 m²
1607 €/m²

Maison neuvePECHBONNIEU (31)

Nous construisons votre maison sur-mesure dans un environnement calme sur ce terrain (apporté par notre partenaire foncier sous réserve de disponibilité), d’une superficie de 838 m² situé à PECHBONNIEU. D'un style sobre mais tendance, cette maison reste modifiable et personnalisable comme tous les modèles Villas et Maisons de France. Dans sa version catalogue, ce modèle dispose de 73 m² de surface habitable. Fonctionnel, son aménagement intérieur comprend un coin nuit avec 2 belles chambres entre 11 et 12m² complétées d'une salle de bain de 4,30 m². La pièce à vivre, lumineuse, de près de 40 m², comprend salon et salle à manger. La cuisine ouverte prolonge ce sentiment de confort et prévoit des rangements significatifs dans le cellier. Notre bureau d’étude spécialisé établit vos plans uniques en nos locaux, sans délai et vous accueille sur rendez-vous pour découvrir les coulisses de la conception de votre maison. Villas et Maisons de France vous apporte la sécurité du Contrat de Construction de Maison Individuelle (CCMI), en vous délivrant Garantie de Livraison, Assurance Décennale et Dommages Ouvrage, Garantie de Parfait Achèvement et de Bon Fonctionnement. Nos équipes commerciales vous accompagnent pour l’accord de prêt, l’obtention du permis de construire et l’acte authentique d’acquisition du terrain. Enfin, constructeur certifié Properméa et avec un process de haute qualité environnementale, Villas et Maisons de France se distingue par d'excellentes performances environnementales et énergétiques en respectant un cahier des charges contraignant ! Faites le choix de la qualité, de la personnalisation et de l'innovation, Contactez Bulent COSKUN au 06 12 29 23 50 . Prix avec assurance dommages-ouvrage comprise, VRD non compris, terrain viabilisé, frais de notaire non compris, frais divers non compris. Terrain sélectionné et vu pour vous sous réserve de disponibilité et au prix indiqué par notre partenaire foncier. Plans contractuels, visuels non contractuels. Cette annonce a été créée et diffusée avec le logiciel VITAHOME. Contactez Bulent COSKUN au 06 12 29 23 50 ou au 05 34 48 00 00 (Villas et Maisons de France).

Proposé par VILLAS ET MAISONS DE FRANCE

Maison neuve - Projet de construction d'une maison 88 m² avec terrain à PECHBONNIEU (31) au prix de 305600€. à PECHBONNIEU (31), prix 135 700 €
135 700 €
88 m²
1542 €/m²

Maison neuvePECHBONNIEU (31)

Construisons ensemble votre maison dans un environnement calme et agréable à vivre sur ce terrain (apporté par notre partenaire foncier sous réserve de disponibilité), d’une superficie de 838 m². D'un style épuré, fonctionnel et élégant, cette maison est modifiable et personnalisable comme tous les modèles Villas et Maisons de France. Le modèle UP, présenté ici, dispose d'une surface habitable de 88 m², d'un RDC intégralement dédié à l'espace de vie et comprenant un grand séjour lumineux, agrémenté d'une cuisine ouverte ou traditionnelle avec cellier accolé. L'aménagement intérieur est facilement modulable et de nombreux rangements sont possibles. A l'étage, 3 chambres de 10 à 12 m² et une salle de bain confortable composent le coin nuit. Avec un process de haute qualité environnementale, Villas et Maisons de France conçoit et construit votre maison sur-mesure tout en réduisant de façon significative son empreinte carbone. RE 2020, étiquette énergie A, tri sélectif et valorisation des déchets sont garantis. Notre label Properméa atteste de la qualité de notre traitement de l’étanchéité à l’air. Vous bénéficierez aussi d'un accompagnement pour l’ensemble de vos démarches, de l’accord de prêt à l’obtention du permis de construire en passant par l’acte authentique d’acquisition du terrain par votre chef de projet. Enfin, notre Contrat de Construction de Maison Individuelle CCMI vous permettra de bénéficier de toutes ses garanties et assurances. Choisissez la sécurité d'un grand nom et la proximité d'une entreprise régionale, contacter votre chef de projet Bulent COSKUN au 06 12 29 23 50, spécialiste de la Maison Individuelle avec process de haute qualité environnementale en Occitanie. Prix avec assurance dommages-ouvrage comprise, VRD non compris, terrain viabilisé, frais de notaire non compris, frais divers non compris. Terrain sélectionné et vu pour vous sous réserve de disponibilité et au prix indiqué par notre partenaire foncier. Plans contractuels, visuels non contractuels. Cette annonce a été créée et diffusée avec le logiciel VITAHOME. Contactez Bulent COSKUN au 06 12 29 23 50 ou au 05 34 48 00 00 (Villas et Maisons de France).

Proposé par VILLAS ET MAISONS DE FRANCE

Maison neuve - Terrain à bâtir Bruguières (31150) à Bruguières (31), prix 235 275 €
235 275 €
72 m²
3268 €/m²

Maison neuveBruguières (31)

D'une architecture sobre et élégante, respectant les normes d'accessibilité cette maison est conçue de manière ingénieuse et fonctionnelle avec la particularité de pouvoir s'agrandir à moindre frais selon les besoins de la famille. Ces volumes sont optimisés pour que chaque membre de la famille puisse avoir son propre cocon. Les plus : Zone jour et zone nuit séparées - Salle d'eau avec douche et une vasque, Wc indépendant et un garage intégré. Le modèle ZEPHYR 71 est à construire dans le département du Tarn, l'Aude, l'Hérault, la Haute-Garonne ainsi que les Pyrénées Orientales par Oc résidences, votre constructeur sur mesure en Occitanie.

Proposé par OC RESIDENCES


Illustration Maisons neuves en vente à proximité de Labastide st sernin (31)

Maisons neuves en vente à proximité de Labastide st sernin (31)

**Labastide-Saint-Sernin (Haute-Garonne, 31)** est un charmant village situé à 20 km au nord de Toulouse, en Occitanie. Niché dans un cadre verdoyant entre la Garonne et les coteaux du Lauragais, il allie tranquillité et proximité des axes routiers (A68, RN124). Son **église romane du XIIe siècle**, classée aux Monuments Historiques, témoigne de son riche patrimoine. Idéal pour les familles, le village propose des **maisons neuves** dans un environnement préservé, à moins de 30 minutes du dynamisme toulousain. Un cadre de vie authentique, à découvrir !

Autres villes actives à Haute-garonne (31)


Conseils pour l'achat d'un bien immobilier

Découvrez notre sélection de maisons neuves, synonymes de confort moderne et de sérénité. Trouvez votre futur chez-vous.

L'avantage d'une maison neuve

Choisir une maison neuve, c'est bénéficier des dernières normes énergétiques (RE2020) pour des économies durables, de frais de notaire réduits, et des garanties constructeur (parfait achèvement, décennale) pour une tranquillité d'esprit.

Nos types d'annonces

Explorez nos annonces : maisons clés en main prêtes à décorer, ou programmes terrain + maison pour personnaliser certains aspects.