

- Prix
- 147 094 €
Maison neuve • NEUILLY-PLAISANCE (94)
- Nom et prix
- Projet de construction d'une maison 67 m² avec terrain à NEUILLY-PLAISANCE (93) • 147 094 €
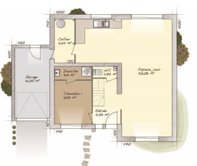
A NEUILLY-PLAISANCE sur un terrain de 380 m², MAISONS SESAME vous propose de réaliser cette maison neuve d'une surface de 67 m² habitables avec 3 chambres. Pour plus d'informations contactez Caroline LEBUGLE au 06/48/03/75/29. Le modèle JADE 75 est une maison à étage de 67 m², offrant un agencement intelligent et moderne. Son garage intégré avec une petite avancée sur l’avant de la maison lui confère un style unique et contemporain, alliant esthétisme et fonctionnalité. Au rez-de-chaussée, un séjour lumineux, ouvert sur une cuisine pratique, crée un espace de vie agréable et fluide. Ce niveau comprend également une salle de bains et un WC séparé, optimisant chaque mètre carré. À l'étage, les trois chambres sont aménagées pour maximiser le confort et l'intimité. Ce modèle est idéal pour ceux qui recherchent un design moderne, tout en bénéficiant d'une fonctionnalité parfaite pour une vie familiale confortable. MAISONS SÉSAME vous propose les prestations suivantes : - Plans des maisons modulables et adaptables selon vos besoins et les spécificités de votre terrain - Large choix de systèmes de chauffage performants et économes en énergie - Sélection de matériaux de qualité garantissant confort et durabilité - Accompagnement sur-mesure pour la recherche et l’acquisition de votre terrain - Construction conforme à la réglementation en vigueur et à la norme RE2020 - Maisons certifiées NF HABITAT, gage de qualité, de performance et de confort Informations du terrain : Pour de toutes les commodités, autoroute A3, à 10km de Paris. Zone PTZ A Bis. Pour plus d'informations contactez Caroline LEBUGLE au 06/48/03/75/29. Demandez une étude gratuite et personnalisée de votre projet de construction ! Étude gratuite de votre projet de construction ! De nombreux terrains disponibles dans votre secteur. Informations légales : Maisons Sésame, constructeur de maisons individuelles, propose une sélection de terrains en collaboration avec ses partenaires fonciers, sous réserve de disponibilité. Il n’agit pas en tant que mandataire pour la vente de ces terrains. Nos maisons, certifiées NF Habitat et conformes à la réglementation thermique en vigueur, vous garantissent un habitat durable et économe en énergie. Découvrez un large choix de modèles adaptés aux besoins de toute la famille. Informations tarifaires : Les prix indiqués sont donnés à titre indicatif et n’incluent pas les frais annexes (frais de notaire, raccordements, etc.). Les visuels et prix présentés sont non contractuels. Pour plus de détails, consultez nos conditions en agence. N° ORIAS IOBSP 13007108 – RCS Versailles 388 867 426. Les informations sur les risques auxquels ce bien est exposé sont disponibles sur le site Géorisques : www.georisques.gouv.fr Cette annonce a été créée et diffusée avec le logiciel VITAHOME. Contactez Caroline LEBUGLE au 06 48 03 75 29 ou au 01 83 01 03 04 (Maisons Sésame - Agence d'Ormesson sur Marne).







