

- Prix
- 135 267 €
Maison neuve • CHAUCONIN-NEUFMONTIERS (77)
- Nom et prix
- Projet de construction d'une maison 73 m² avec terrain à CHAUCONIN-NEUFMONTIERS (77) • 135 267 €
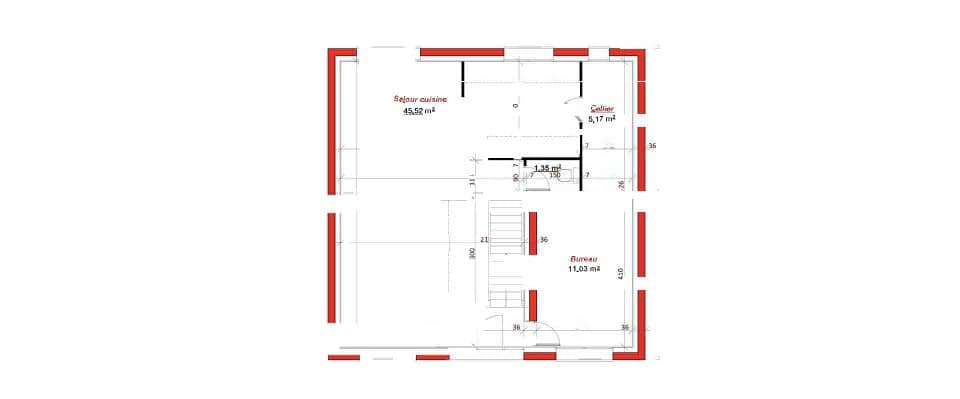
A CHAUCONIN-NEUFMONTIERS sur un terrain de 342 m², MAISONS SESAME vous propose de réaliser cette maison neuve d'une surface de 73 m² habitables avec 3 chambres. Le modèle ATRIA 75 est une maison à étage de 73 m², parfaitement agencée pour offrir un espace de vie fonctionnel et confortable. Le rez-de-chaussée comprend un grand séjour lumineux, ouvert sur une cuisine spacieuse, créant une atmosphère conviviale et fluide. Ce niveau dispose également d’une salle de bains et d’un WC séparé, maximisant l’espace disponible pour un confort optimal. À l’étage, les 3 chambres sont idéalement réparties, offrant un espace privé et agréable pour chaque membre de la famille. MAISONS SÉSAME vous propose les prestations suivantes : - Plans des maisons modulables et adaptables selon vos besoins et les spécificités de votre terrain - Large choix de systèmes de chauffage performants et économes en énergie - Sélection de matériaux de qualité garantissant confort et durabilité - Accompagnement sur-mesure pour la recherche et l’acquisition de votre terrain - Construction conforme à la réglementation en vigueur et à la norme RE2020 - Maisons certifiées NF HABITAT, gage de qualité, de performance et de confort Informations du terrain : Quartier très recherché, à quelques minutes de MEAUX. Demandez une étude gratuite et personnalisée de votre projet de construction ! Étude gratuite de votre projet de construction ! De nombreux terrains disponibles dans votre secteur. Informations légales : Maisons Sésame, constructeur de maisons individuelles, propose une sélection de terrains en collaboration avec ses partenaires fonciers, sous réserve de disponibilité. Il n’agit pas en tant que mandataire pour la vente de ces terrains. Nos maisons, certifiées NF Habitat et conformes à la réglementation thermique en vigueur, vous garantissent un habitat durable et économe en énergie. Découvrez un large choix de modèles adaptés aux besoins de toute la famille. Informations tarifaires : Les prix indiqués sont donnés à titre indicatif et n’incluent pas les frais annexes (frais de notaire, raccordements, etc.). Les visuels et prix présentés sont non contractuels. Pour plus de détails, consultez nos conditions en agence. N° ORIAS IOBSP 13007108 – RCS Versailles 388 867 426. Les informations sur les risques auxquels ce bien est exposé sont disponibles sur le site Géorisques : www.georisques.gouv.fr Cette annonce a été créée et diffusée avec le logiciel VITAHOME. Contactez Melyssande PETITJEAN au 06 86 81 59 21 (Maisons Sésame - Agence de Chelles).












