

- Prix
- 338 120 €
Maison neuve • Chambly (60)
- Nom et prix
- Terrain à bâtir Chambly (60230) • 338 120 €
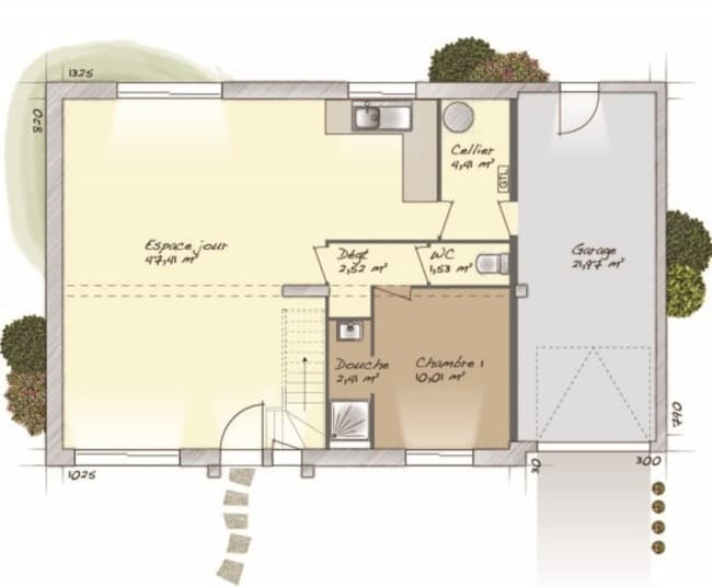
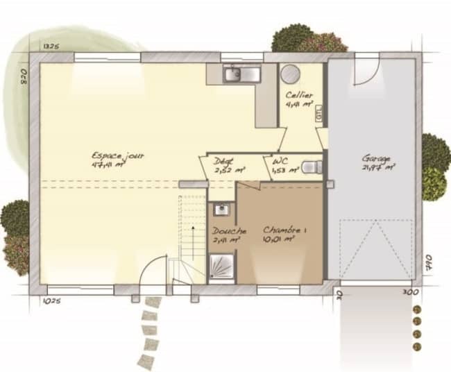
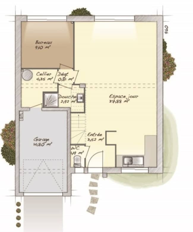
Chambly : maison T6 (100 m²) en vente EMPLACEMENT PRIVILÉGI- MAISON 6 PIÈCES NEUVE À vendre : localisée à deux pas de Saint-Denis, bénéficiant d'un emplacement d'exception dans Chambly (60230), notre agence Maisons Balency Pierrelaye est heureuse de vous proposer cette maison de 6 pièces de 100 m² et de 550 m² de terrain. Il s'agit d'une maison de 2 niveaux. Son intérieur offre quatre chambres, une cuisine et deux salles de bains. La maison est neuve. La maison est située dans un secteur prisé. Plusieurs établissements scolaires (maternelle, élémentaire, primaire et collège) sont implantés à moins de 10 minutes à pied. Niveau transports en commun, il y a la gare Chambly à quelques pas du bien. L'autoroute A16 et la nationale N184 sont accessibles à moins de 8 km. On trouve une bibliothèque, un tennis, un bassin de natation, trois boulangeries, des commerces, deux épiceries, une boucherie-charcuterie et un bureau de poste dans les environs. Enfin, le marché Place de Gaulle anime le quartier. Son prix de vente est de 338 120 €. Contactez notre agence (Christophe TALAMONI : 06-49-55-08-27) pour toute information sur la propriété, sur les modalités de vente ou sur les démarches à suivre. Concrétisez vos projets immobiliers avec Maisons Balency Pierrelaye.











