

- Prix
- 228 889 €
Maison neuve • Prunet (31)
- Nom et prix
- Terrain à bâtir Prunet (31460) • 228 889 €
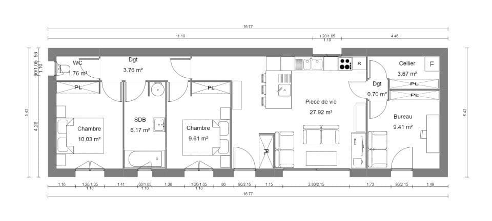
Conçu pour vous, ce pavillon saura s'adapter au dénivelé de votre terrain. Il est composé d'un lumineux Salon/Séjour de 40 m² avec un accès sur le jardin par votre baie vitrée. Le coté nuit s'articule autour de trois chambres avec placard et sa salle de bain. Son sous-sol total de 89 m² vous permettra de garer vos voitures, d'avoir plusieurs espaces de rangements et de stockages. Le modèle Meltem 82 sur Sous-sol est à construire dans le département du Tarn, l'Aude, l'Hérault, la Haute-Garonne ainsi que les Pyrénées Orientales par Oc résidences, votre constructeur sur mesure en Occitanie.










