

- Prix
- 157 000 €
Maison neuve • Salvagnac (81)
- Nom et prix
- Terrain à bâtir Salvagnac (81630) • 157 000 €
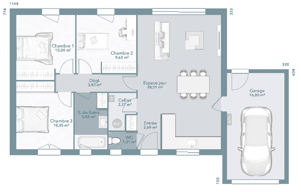
D'une architecture sobre et élégante, respectant les normes d'accessibilité cette maison est conçue de manière ingénieuse et fonctionnelle avec la particularité de pouvoir s'agrandir à moindre frais selon les besoins de la famille. Ces volumes sont optimisés pour que chaque membre de la famille puisse avoir son propre cocon. Les plus : Zone jour et zone nuit séparées - Salle d'eau avec douche et une vasque, Wc indépendant et un garage intégré. Le modèle ZEPHYR 71 est à construire dans le département du Tarn, l'Aude, l'Hérault, la Haute-Garonne ainsi que les Pyrénées Orientales par Oc résidences, votre constructeur sur mesure en Occitanie.











