

- Prix
- 555 000 €
Maison neuve • Saint-Prix (95)
- Nom et prix
- Terrain à bâtir Saint-Prix (95390) • 555 000 €
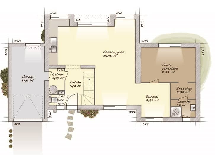
Maisons Berval vous propose un projet de construction sur la commune de Saint-Prix. Ce terrain de 339 m2 vous séduira à coup sûr. Cette maison en R+1 vous offre au rez-de-chaussée un espace salon/séjour et cuisine ouverte, un bureau ainsi qu'un cellier. A l'étage, la Trocadéro 123 vous offre une salle de bains, 3 chambres ainsi qu'une suite parentale avec salle d'eau. Le modèle est totalement adaptable à vos envies et besoins et personnalisable grâce à de nombreuses options de finition. Nous consulter. Le prix affiché comprend le coût du terrain et de la construction hors frais de notaire et taxes. Pour tous renseignements, veuillez contacter Monsieur Stéphane LEPAGE au 0683911324 Maisons Berval est certifiée NF Habitat HQE.












