

- Prix
- 240 904 €
Maison neuve • RUE DE LA MAIRIE (77)
- Nom et prix
- Projet de construction d'une maison 128 m² avec terrain à SAINT-MARTIN-EN-BIERE (77) • 240 904 €
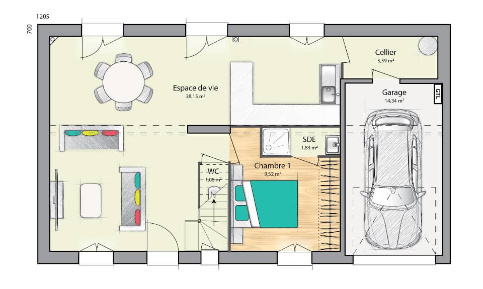
A SAINT-MARTIN-EN-BIERE sur un terrain de 655 m², MAISONS SESAME vous propose de réaliser cette maison neuve d'une surface de 128 m² habitables avec 5 chambres. Le modèle EVOLUTIVE STANDING 125 + GARAGE est une maison conçue pour s’adapter aux besoins changeants de ses propriétaires. Avec une surface habitable de 128 m², elle offre un espace de vie confortable et moderne. Son toit plat et son petit porche au-dessus de la porte d'entrée apportent une touche contemporaine, tout en renforçant l’accueil chaleureux de la maison. Au rez-de-chaussée, l’entrée mène à un grand séjour lumineux, une cuisine fonctionnelle, un cellier pratique et un WC séparé. La chambre parentale, équipée d’un dressing spacieux et d’une salle de douche privée, assure une intimité totale. Le garage attenant est un atout supplémentaire pour le stockage et le stationnement. À l’étage, vous trouverez 4 chambres, dont une avec un dressing et une salle de douche privés. Une salle de bains et un WC séparé complètent l’étage, offrant ainsi un espace optimal pour chaque membre de la famille. MAISONS SÉSAME vous propose les prestations suivantes : - Plans des maisons modulables et adaptables selon vos besoins et les spécificités de votre terrain - Large choix de systèmes de chauffage performants et économes en énergie - Sélection de matériaux de qualité garantissant confort et durabilité - Accompagnement sur-mesure pour la recherche et l’acquisition de votre terrain - Construction conforme à la réglementation en vigueur et à la norme RE2020 - Maisons certifiées NF HABITAT, gage de qualité, de performance et de confort Informations du terrain : CALME , PLAT ET ARBORÉ , PROCHE BARBIZON Demandez une étude gratuite et personnalisée de votre projet de construction ! Étude gratuite de votre projet de construction ! De nombreux terrains disponibles dans votre secteur. Informations légales : Maisons Sésame, constructeur de maisons individuelles, propose une sélection de terrains en collaboration avec ses partenaires fonciers, sous réserve de disponibilité. Il n’agit pas en tant que mandataire pour la vente de ces terrains. Nos maisons, certifiées NF Habitat et conformes à la réglementation thermique en vigueur, vous garantissent un habitat durable et économe en énergie. Découvrez un large choix de modèles adaptés aux besoins de toute la famille. Informations tarifaires : Les prix indiqués sont donnés à titre indicatif et n’incluent pas les frais annexes (frais de notaire, raccordements, etc.). Les visuels et prix présentés sont non contractuels. Pour plus de détails, consultez nos conditions en agence. N° ORIAS IOBSP 13007108 – RCS Versailles 388 867 426. Les informations sur les risques auxquels ce bien est exposé sont disponibles sur le site Géorisques : www.georisques.gouv.fr Cette annonce a été créée et diffusée avec le logiciel VITAHOME. Contactez José FERREIRA au 06 75 62 11 75 ou au 01 64 79 14 14 (Maisons Sésame - Agence de Dammarie-les-Lys).











