

- Prix
- 531 000 €
Maison neuve • Franconville (95)
- Nom et prix
- Terrain à bâtir Franconville (95130) • 531 000 €
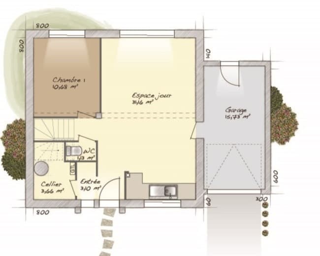
Maison de 6 pièces (98 m²) à vendre à Franconville MAISON 6 PIÈCES NEUVE Au pied du RER C (station Franconville-Le Plessis-Bouchard, 25 min de Paris), ayez le coup de coeur pour cette maison de 6 pièces de 98 m² en vente à Franconville (95130). Elle inclut quatre chambres, une cuisine et une salle de bains. Le terrain du bien s'étend sur 781 m². Cette maison compte 2 niveaux. Elle est neuve. Tous les types d'écoles (de la maternelle au lycée) sont implantés à moins de 10 minutes à pied, tout comme une structure d'accueil pour les tout-petits. Niveau transports, il y a le RER C et A ainsi que 49 gares à moins de 10 minutes en voiture. On trouve une bibliothèque, un bassin de natation, deux tennis, un bowling, des commerces, un supermarché, des boulangeries, une poissonnerie et une supérette dans les environs. Son prix de vente est de 531 000 €. N'hésitez pas à prendre contact avec Aurelien MONTANIER (tél : 06-24-66-88-34) pour obtenir de plus amples renseignements sur cette maison, sur les modalités de vente ou sur les démarches à suivre. Maisons Balency Saint-Maur-des-Fossés vous accompagne à toutes les étapes de votre projet et dans tous vos projets immobiliers.











