

- Prix
- 367 000 €
Maison neuve • Argenteuil (95)
- Nom et prix
- Terrain à bâtir Argenteuil (95100) • 367 000 €
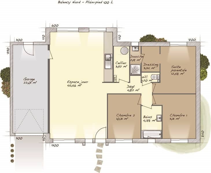
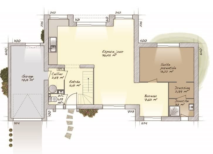
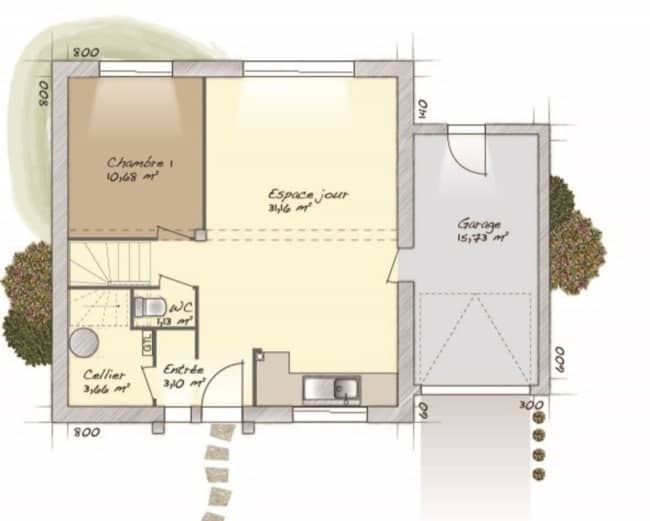
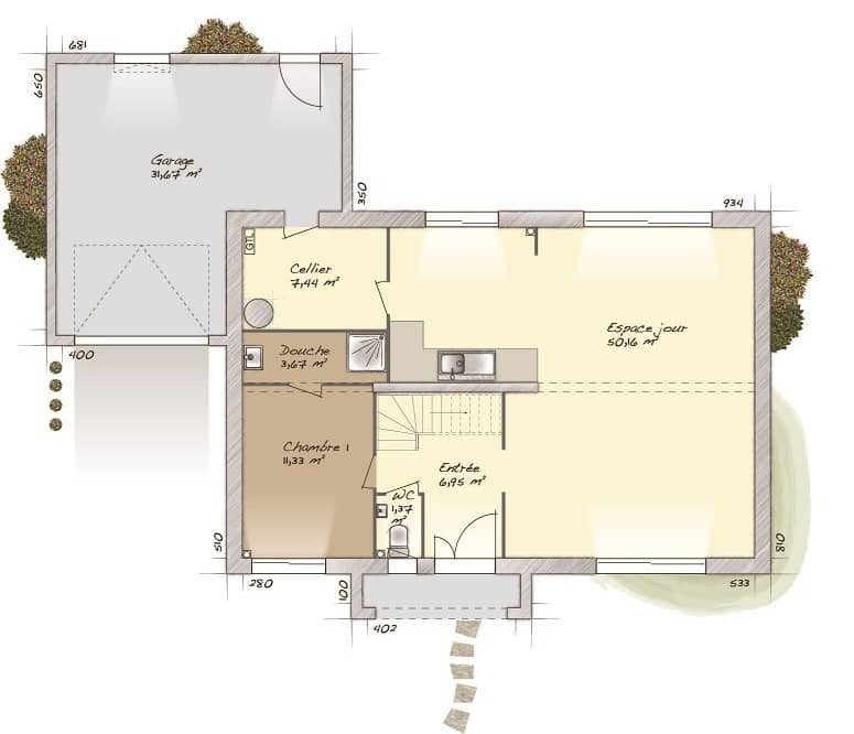
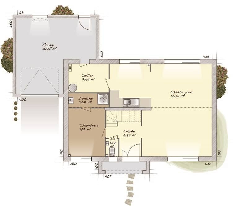
Rare à Argenteuil, terrain de 205 m² avec une façade d'environ 11 m et une profondeur de 18 m dans une rue très recherchée des Côteaux. Vous pourrez faire construire une maison de 82 m², 3 chambres dont une belle suite parentale garage intégré, pompe à chaleur. Travail soigné du 1er constructeur de maisons individuelles: Groupe HEXAÖM/France Confort Prévoir pour un tel projet, un budget de 367000 € (maison, terrain, raccordement, viabilisation, carrelages 45/45 dans les pièces de vie, sanitaires compris hors peinture intérieure, revêtement de sol des chambres et frais de notaire). Possibilité de personnaliser les plans de votre maison lors d'un RDV. Contacter moi en composant le 06 puis le 76, le 21, le 22 et le 60.











