

- Prix
- 356 274 €
Maison neuve • Esbly (77)
- Nom et prix
- Terrain à bâtir Esbly (77450) • 356 274 €
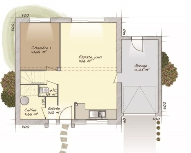
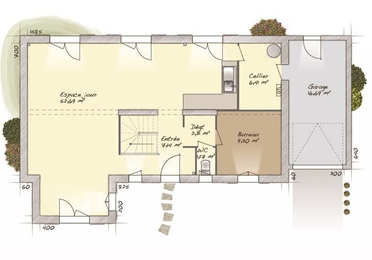
Maison T6 (98 m²) en vente à Esbly MAISON 6 PIÈCES NEUVE - PROCHE DE MONTREUIL À deux pas de la gare, votre agence Maisons Balency Dammartin-en-Goële est ravie de vous proposer cette maison de 6 pièces de 98 m² et de 400 m² de terrain à Esbly (77450). C'est une maison de 2 niveaux. Elle se divise en quatre chambres, une cuisine et une salle de bains. La maison est neuve. Il y a l'École Élémentaire du Centre, l'École Maternelle les Couleurs et le Collège Louis Braille à moins de 10 minutes à pied et deux crèches. Niveau transports, on trouve la gare Esbly à proximité, plaçant la maison à 30 min de Paris en transilien. On trouve un tennis, des commerces, trois boulangeries, un supermarché, deux épiceries et une boucherie-charcuterie à quelques minutes à peine. Elle est proposée à l'achat pour 356 274 €. Contactez notre constructeur (Sébastien DARTEVELLE : 06-24-63-58-60) pour obtenir de plus amples informations sur le bien, sur les démarches à suivre ou sur les modalités de vente. Maisons Balency Dammartin-en-Goële est là pour vous accompagner à toutes les étapes de l'achat.










