

- Prix
- 190 000 €
Maison neuve • DAMPMART (77)
- Nom et prix
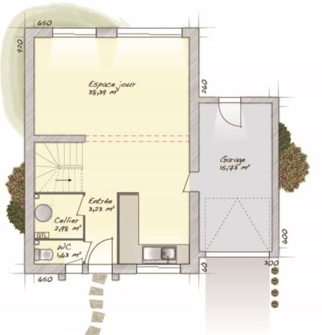
- Projet de construction d'une maison 120 m² avec terrain à DAMPMART (77) • 190 000 €
Fabien Hervin, Le Pavillon Français vous propose de réaliser votre projet de construction 100% SUR-MESURE sur ce terrain. Depuis plus de 30 ans, Le Pavillon Français conçoit des projets uniques, élégants et personnalisés. Chaque maison est une création sur-mesure, pensée avec vous, dans les moindres détails. Grâce à notre certification NF Habitat, nous vous assurons une construction à la fois fiable, confortable et pérenne. Par ailleurs, toutes nos maisons sont réalisées sous contrat CCMI (Contrat de Construction de Maison Individuelle) afin de concrétiser votre projet en toute sérénité, tout en respectant rigoureusement les normes RE2020, garantissant une performance énergétique et environnementale optimale. ____________________________________________________________________ Pourquoi choisir Le Pavillon Français ? • Personnalisation 100% Sur-mesure : Chaque détail est personnalisable, de l'architecture à la finition. • Qualité et Durabilité : Des matériaux sélectionnés avec soin pour assurer la performance de votre maison. • Accompagnement Personnalisé : De la conception à la remise des clés, vous êtes accompagné à chaque étape. ____________________________________________________________________ Instagram: Fabienlepavillonfrancais ____________________________________________________________________ Pour un futur solidement bâti … Construction aux normes RE2020. Prix avec assurance dommages-ouvrage comprise, hors VRD, terrain viabilisé, frais de notaire non compris, frais divers non compris. Terrain sélectionné et vu pour vous sous réserve de disponibilité et au prix indiqué par notre partenaire foncier. Conditions et visuels non contractuels. Cette annonce a été créée et diffusée avec le logiciel VITAHOME. Contactez Fabien HERVIN au 06 50 06 36 64 (Le Pavillon Français - Agence d'Ozoir-la-ferrière).












