

- Prix
- 579 000 €
Maison neuve • Taverny (95)
- Nom et prix
- Terrain à bâtir Taverny (95150) • 579 000 €
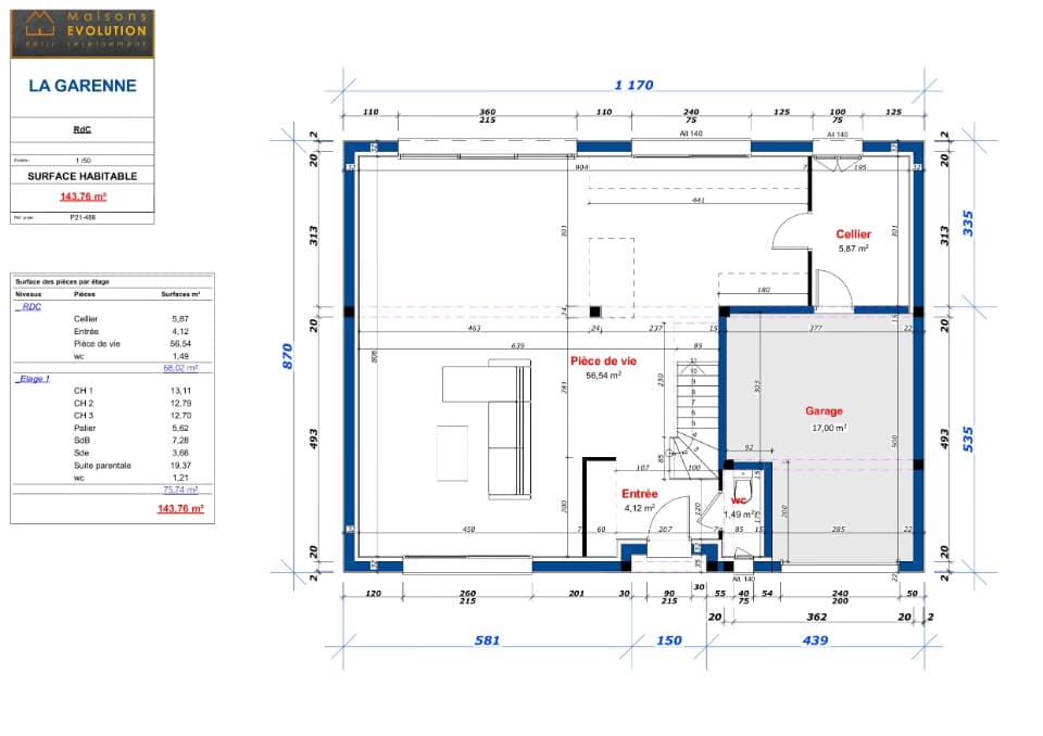
Venez découvrir cette jolie maison familiale de 145 m². Vous serez séduits par ses volumes et ses grandes baies donnant sur la terrasse extérieur. Elle dispose au RDC d'un garage intégré, une très grande pièce de vie de plus de 50 m² traversante, un cellier attenant au garage et à la cuisine. A l'étage, 4 belles chambres de plus de 12 m² dont une suite parentale avec dressing et salle d'eau avec son balcon privatif, une salle de bain et un wc indépendant viennent compléter ce bien. PLANS DE MAISON SUR MESURE - PERSONNALISATION N'hésitez pas à contactez Mme Tessie FLEUREAU 07/62/06/10/64 pour plus de renseignement. Je vous propose de faire construire cette magnifique maison sur un terrain plat situé à Taverny de 385 m². Situé dans un quartier pavillonnaire, à seulement 5 min à pied du Collège St Honorine et à moins de 15 min à pied de la gare de Montigny Beauchamps (RER C et Ligne H). Commerces et écoles à proximité. A visiter rapidement, rare sur secteur. Belle faisabilité de construction ! Terrain proposé par un partenaire foncier selon disponibilités et autorisation de publicité au prix de 265 000 euros. Hors droit d'enregistrement, frais de notaire, et frais annexes. Maison proposée au prix de 254 000 euros (Hors branchements et raccordements, viabilisation du terrain, papiers peints, peintures, revêtement de sol. Tarif modifiable sans préavis). Etiquette énergie : A. Différents modèles disponibles pour ce terrain. Assurances et garanties du constructeur (RC professionnelle, décennale, dommage ouvrage, garantie de remboursement de l'acompte, livraison à prix et délai convenu) Le projet au global comprenant le terrain, les frais de notaire, la viabilisation publique, privée, les frais annexes et la construction est d'environ 579 000 €




