

- Prix
- 179 925 €
Maison neuve • 30 AVENUE DE LA GARENNE (91)
- Nom et prix
- Projet de construction d'une maison 98 m² avec terrain à BRUNOY (91) • 179 925 €
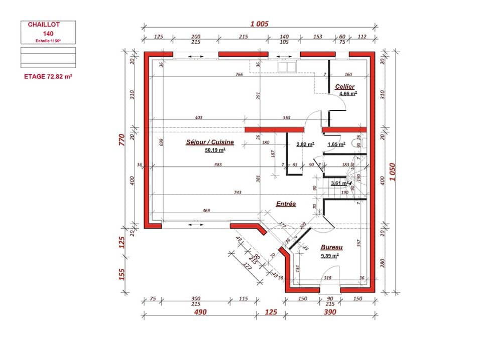
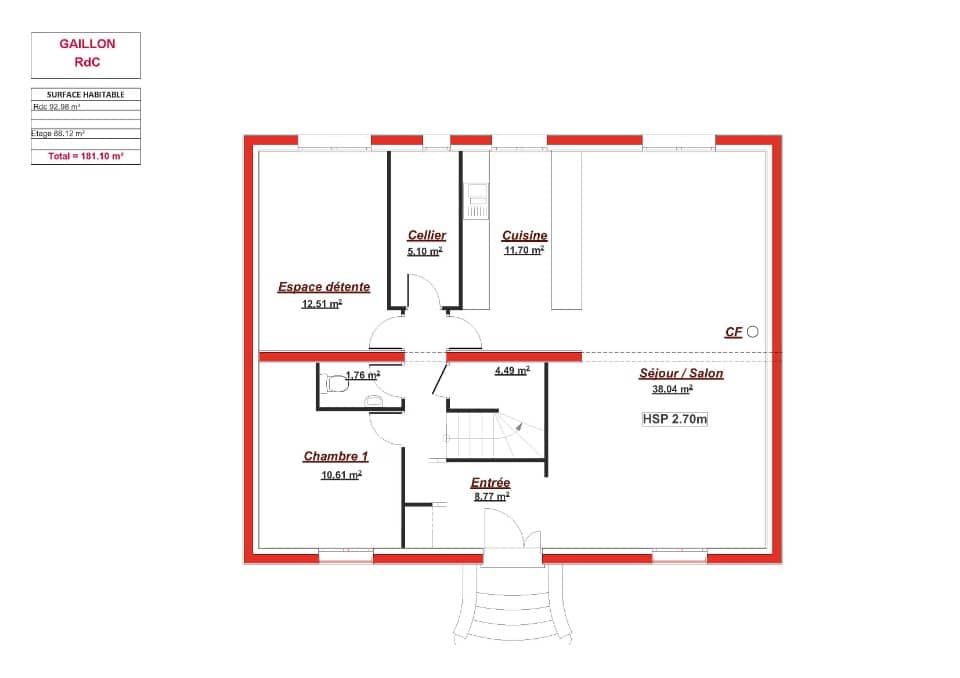
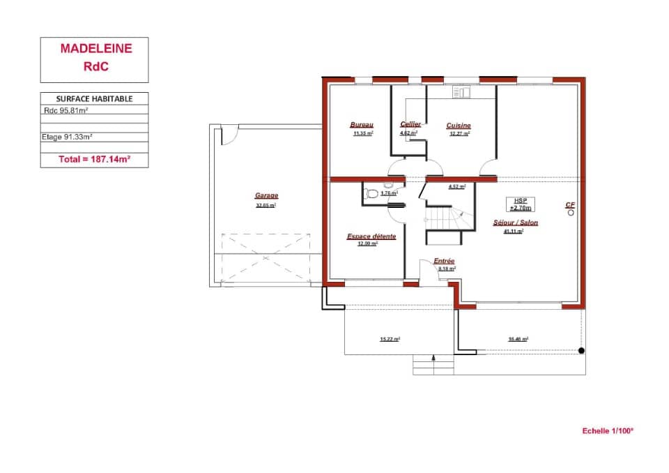
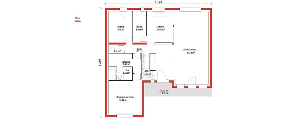
A BRUNOY sur un terrain de 408 m², MAISONS SESAME vous propose de réaliser cette maison neuve d'une surface de 98 m² habitables avec 4 chambres. Le modèle PÉRIDOT est une maison à combles aménagés de 98 m², offrant un agencement spacieux et élégant. Ce modèle comprend six pièces, dont quatre chambres, et est conçu pour offrir un confort optimal tout en maximisant l’espace. Son architecture classique, qui reflète élégance et finesse, est mise en valeur par un porche en continuité avec l’avancée du garage, apportant un atout esthétique et fonctionnel. Les pièces de vie sont ouvertes et lumineuses, créant une atmosphère agréable et conviviale. Les quatre chambres offrent suffisamment d'espace pour une famille, tandis que la salle de bains, pratique et bien agencée, complète l'ensemble. Le garage de 16 m² vient également ajouter une touche fonctionnelle à ce modèle. MAISONS SÉSAME vous propose les prestations suivantes : - Plans des maisons modulables et adaptables selon vos besoins et les spécificités de votre terrain - Large choix de systèmes de chauffage performants et économes en énergie - Sélection de matériaux de qualité garantissant confort et durabilité - Accompagnement sur-mesure pour la recherche et l’acquisition de votre terrain - Construction conforme à la réglementation en vigueur et à la norme RE2020 - Maisons certifiées NF HABITAT, gage de qualité, de performance et de confort Informations du terrain : TERRAIN PLAT Demandez une étude gratuite et personnalisée de votre projet de construction ! Étude gratuite de votre projet de construction ! De nombreux terrains disponibles dans votre secteur. Informations légales : Maisons Sésame, constructeur de maisons individuelles, propose une sélection de terrains en collaboration avec ses partenaires fonciers, sous réserve de disponibilité. Il n’agit pas en tant que mandataire pour la vente de ces terrains. Nos maisons, certifiées NF Habitat et conformes à la réglementation thermique en vigueur, vous garantissent un habitat durable et économe en énergie. Découvrez un large choix de modèles adaptés aux besoins de toute la famille. Informations tarifaires : Les prix indiqués sont donnés à titre indicatif et n’incluent pas les frais annexes (frais de notaire, raccordements, etc.). Les visuels et prix présentés sont non contractuels. Pour plus de détails, consultez nos conditions en agence. N° ORIAS IOBSP 13007108 – RCS Versailles 388 867 426. Les informations sur les risques auxquels ce bien est exposé sont disponibles sur le site Géorisques : www.georisques.gouv.fr Cette annonce a été créée et diffusée avec le logiciel VITAHOME. Contactez Mme FORTES au 06 35 53 11 16 (Maisons Sésame - Agence de le Perreux sur Marne).












