

- Prix
- 154 522 €
Maison neuve • JUZIERS (78)
- Nom et prix
- Projet de construction d'une maison 97 m² avec terrain à JUZIERS (78) • 154 522 €
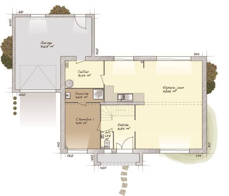
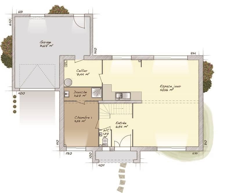
A JUZIERS sur un terrain de 300 m², MAISONS SESAME vous propose de réaliser cette maison neuve d'une surface de 97 m² habitables avec 3 chambres. Le modèle SAPHIR 100 est une maison de 97 m² qui séduit par son design élégant, particulièrement souligné par son fronton sur la façade, ajoutant une touche de raffinement et de caractère à l'ensemble. Au rez-de-chaussée, la maison dispose d'un grand séjour lumineux, une cuisine ouverte et un bureau qui peut également servir d’espace pour télétravail, ainsi qu'un WC séparé pour plus de praticité. À l’étage, vous trouverez 3 chambres spacieuses, idéales pour accueillir toute la famille, ainsi qu'une salle de bain commune, offrant tout le confort nécessaire. Le SAPHIR 100 est un modèle parfait pour ceux qui recherchent une maison fonctionnelle avec un design moderne et soigné, tout en étant adaptée aux besoins contemporains, comme l'intégration d’un bureau pour télétravail. MAISONS SÉSAME vous propose les prestations suivantes : - Plans des maisons modulables et adaptables selon vos besoins et les spécificités de votre terrain - Large choix de systèmes de chauffage performants et économes en énergie - Sélection de matériaux de qualité garantissant confort et durabilité - Accompagnement sur-mesure pour la recherche et l’acquisition de votre terrain - Construction conforme à la réglementation en vigueur et à la norme RE2020 - Maisons certifiées NF HABITAT, gage de qualité, de performance et de confort Demandez une étude gratuite et personnalisée de votre projet de construction ! Étude gratuite de votre projet de construction ! De nombreux terrains disponibles dans votre secteur. Informations légales : Maisons Sésame, constructeur de maisons individuelles, propose une sélection de terrains en collaboration avec ses partenaires fonciers, sous réserve de disponibilité. Il n’agit pas en tant que mandataire pour la vente de ces terrains. Nos maisons, certifiées NF Habitat et conformes à la réglementation thermique en vigueur, vous garantissent un habitat durable et économe en énergie. Découvrez un large choix de modèles adaptés aux besoins de toute la famille. Informations tarifaires : Les prix indiqués sont donnés à titre indicatif et n’incluent pas les frais annexes (frais de notaire, raccordements, etc.). Les visuels et prix présentés sont non contractuels. Pour plus de détails, consultez nos conditions en agence. N° ORIAS IOBSP 13007108 – RCS Versailles 388 867 426. Les informations sur les risques auxquels ce bien est exposé sont disponibles sur le site Géorisques : www.georisques.gouv.fr Cette annonce a été créée et diffusée avec le logiciel VITAHOME. Contactez Alexis DE NEIVA au 06 59 31 66 48 ou au 01 82 20 01 50 (Maisons Sésame - Agence de Coignières).












