

- Prix
- 937 000 €
Maison neuve • Sceaux (92)
- Nom et prix
- Terrain à bâtir Sceaux (92330) • 937 000 €
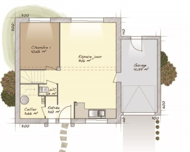
VENTE d'une maison de 6 pièces (98 m²) à Sceaux MAISON 6 PIÈCES NEUVE À proximité du RER B (10 min de Paris), nous vous présentons à vendre à Sceaux (92330), cette maison de 6 pièces de 98 m². Cette maison possède 2 niveaux. Elle se divise en quatre chambres, une cuisine et une salle de bains. Cette maison est neuve. Le terrain du bien est de 414 m². Des écoles de tous niveaux (de la maternelle au lycée) sont implantées à moins de 10 minutes à pied, tout comme une structure d'accueil pour la petite enfance. Niveau transports, on trouve la station de RER Sceaux (ligne B) à quelques pas du bien. Il y a une bibliothèque, deux tennis, un bassin de natation, des commerces, des boulangeries, un supermarché, trois boucheries-charcuteries et une poissonnerie dans les environs. Son prix de vente est de 937 000 €. N'hésitez pas à prendre contact avec notre agence (MONTANIER Christophe : 06-10-23-51-22) pour plus de renseignements sur la maison, sur les modalités de vente et sur les démarches à suivre. Maisons Balency Saint-Maur-des-Fossés vous accompagne à toutes les étapes de l'achat et dans tous vos projets immobiliers.


