

- Prix
- 359 500 €
Maison neuve • Bezons (95)
- Nom et prix
- Terrain à bâtir Bezons (95870) • 359 500 €
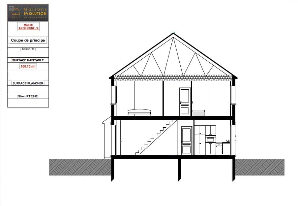
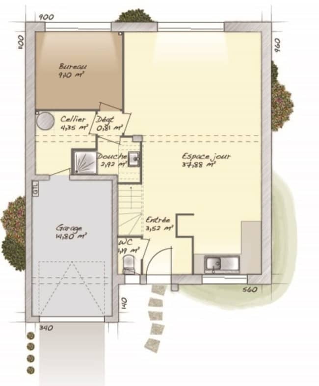
Maison F6 (105 m²) en vente à Bezons MAISON 6 PIÈCES NEUVE À vendre : au pied de la station Houilles-Carrières-sur-Seine du RER A (10 min de Paris), Maisons Evolution Dammarie-les-Lys vous présente à Bezons (95870), cette maison de 6 pièces de 105 m² et de 377 m² de terrain. Son intérieur inclut quatre chambres, une cuisine et deux salles de bains. Il s'agit d'une maison de 2 niveaux. Elle est neuve. On trouve tous les types d'établissements scolaires à moins de 10 minutes à pied, tout comme une crèche. Côté transports en commun, il y a les lignes A, C et D du RER ainsi que 54 gares à moins de 10 minutes en voiture. On trouve une bibliothèque, deux bassins de natation, deux tennis, des supermarchés, des commerces, des boulangeries, une poissonnerie et des épiceries à quelques minutes à peine. Son prix de vente est de 359 500 €. Hors frais de notaire et raccordements. Prenez contact avec notre agence au 06-37-77-37-68 ou 01-64-79-02-20pour obtenir de plus amples renseignements sur cette maison, sur les modalités de vente ou sur les démarches à suivre. Faites de vos projets immobiliers une réalité avec Maisons Evolution Dammarie-les-Lys.











