

- Prix
- 417 000 €
Maison neuve • Franconville (95)
- Nom et prix
- Terrain à bâtir Franconville (95130) • 417 000 €
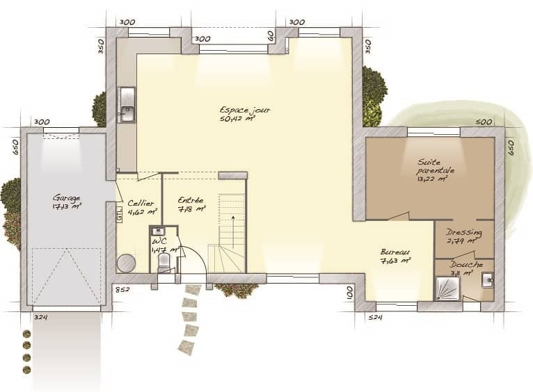
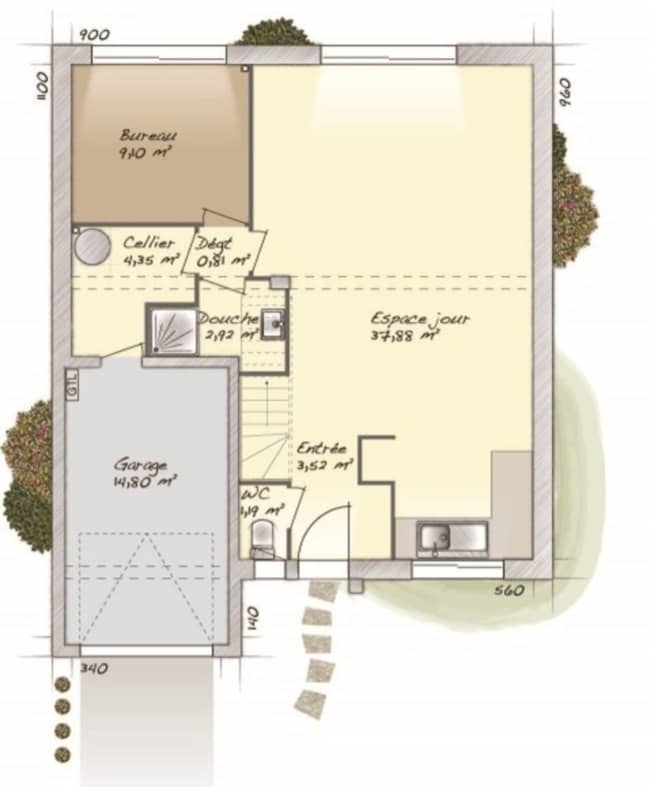
Rare à Franconville, terrain de 379 m² avec une façade d'environ 15 m et une profondeur de 27 m. Vous pourrez faire construire une maison de 124 m², 5 chambres dont une belle suite parentale, pompe à chaleur, plancher chauffant. Travail soigné du 1er constructeur de maisons individuelles: Groupe HEXAÖM/France Confort Prévoir pour un tel projet, un budget de 417000 € (maison, terrain, raccordement, viabilisation, carrelages 45/45 dans les pièces de vie, sanitaires compris hors peinture intérieure, revêtement de sol des chambres et frais de notaire). Possibilité de choisir un autre modèle et d'imaginer les plans de votre maison lors d'un RDV. Contacter moi en composant le 06 puis le 76, le 21, le 22 et le 60.











