

- Prix
- 169 645 €
Maison neuve • CROSNE (91)
- Nom et prix
- Projet de construction d'une maison 90 m² avec terrain à CROSNE (91) • 169 645 €
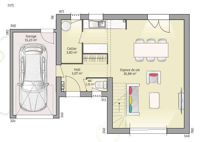
A CROSNE sur un terrain de 333 m², MAISONS SESAME vous propose de réaliser cette maison neuve d'une surface de 90 m² habitables avec 3 chambres. Le modèle OPALE 90 est une maison à combles aménagés de 90 m², offrant un espace de vie bien conçu et adapté aux besoins d’une famille. Ce modèle comprend quatre pièces, dont trois chambres, et maximise chaque mètre carré pour un confort optimal. Les chambres, aménagées sous les combles, se partagent une grande salle de bains équipée d’une baignoire et d’une fenêtre, offrant ainsi une belle luminosité. Au rez-de-chaussée, les pièces à vivre sont spacieuses, lumineuses et fonctionnelles, avec un grand séjour de 37 m² en L, ouvert sur une cuisine moderne et pratique. Un WC indépendant et un accès direct au garage de 16,79 m² complètent cet agencement, offrant une solution idéale pour ceux recherchant à la fois espace et praticité. Ce modèle OPALE 90 est conçu pour offrir un cadre de vie agréable et fonctionnel à toute la famille. MAISONS SÉSAME vous propose les prestations suivantes : - Plans des maisons modulables et adaptables selon vos besoins et les spécificités de votre terrain - Large choix de systèmes de chauffage performants et économes en énergie - Sélection de matériaux de qualité garantissant confort et durabilité - Accompagnement sur-mesure pour la recherche et l’acquisition de votre terrain - Construction conforme à la réglementation en vigueur et à la norme RE2020 - Maisons certifiées NF HABITAT, gage de qualité, de performance et de confort Informations du terrain : 10 minutes à pieds de la gare et du centre ville Demandez une étude gratuite et personnalisée de votre projet de construction ! Étude gratuite de votre projet de construction ! De nombreux terrains disponibles dans votre secteur. Informations légales : Maisons Sésame, constructeur de maisons individuelles, propose une sélection de terrains en collaboration avec ses partenaires fonciers, sous réserve de disponibilité. Il n’agit pas en tant que mandataire pour la vente de ces terrains. Nos maisons, certifiées NF Habitat et conformes à la réglementation thermique en vigueur, vous garantissent un habitat durable et économe en énergie. Découvrez un large choix de modèles adaptés aux besoins de toute la famille. Informations tarifaires : Les prix indiqués sont donnés à titre indicatif et n’incluent pas les frais annexes (frais de notaire, raccordements, etc.). Les visuels et prix présentés sont non contractuels. Pour plus de détails, consultez nos conditions en agence. N° ORIAS IOBSP 13007108 – RCS Versailles 388 867 426. Les informations sur les risques auxquels ce bien est exposé sont disponibles sur le site Géorisques : www.georisques.gouv.fr Cette annonce a été créée et diffusée avec le logiciel VITAHOME. Contactez Marine FERNANDES au 06 73 29 78 96 ou au 01 69 05 14 14 (Maisons Sésame - Agence de Juvisy-sur-Orge).








