

- Prix
- 323 000 €
Maison neuve • Mériel (95)
- Nom et prix
- Terrain à bâtir () • 323 000 €
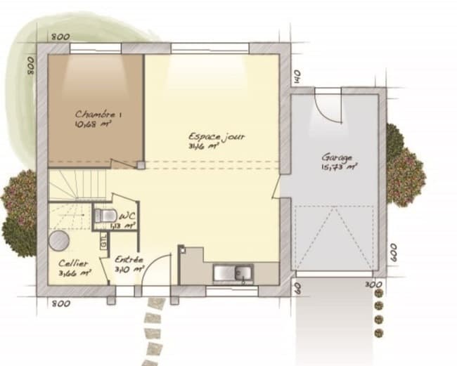
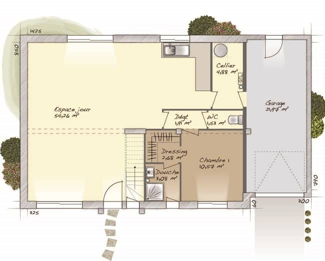
Cette version du plan Etage GI 4 ch Trendy allie tradition et authenticité dans une maison compacte. Dans sa composition de 96 m² elle offre des espaces optimisés, lumineux et fonctionnels : un espace jour avec d'un côté, la cuisine, les WC et un garage de 15 m² totalement intégré et de l'autre un espace de 32,5 m² pour l'entrée, le salon et la salle à manger. À l'étage, on retrouve aussi de beaux espaces avec une salle de bains de plus de 6 m² et 4 chambres de plus de 10 m². Ce plan assurera confort et bien-être pour chacun des occupants de cette maison !











