

- Prix
- 415 650 €
Maison neuve • Roissy-en-France (95)
- Nom et prix
- Terrain à bâtir Roissy-en-France (95700) • 415 650 €
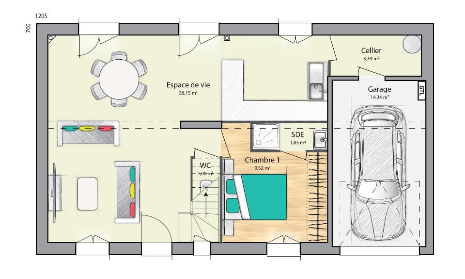
Maison à combles aménagés , située à seulement 10 minutes de l'aéroport de Roissy , sur un terrain de 639m² viabilisé . Proximité immédiate de l'école et de la crèche , environnement paisible et verdoyant , supermarché et médecin sur place. Cette maison dispose de 3 chambres avec rangements intégrés , séjour carrelé ,1 salle d'eau équipée ,cellier et garage , packs alarme et domotique . Tous nos plans sont 100% personnalisables et modifiables selon vos gouts et habitudes de vie . Profitez également de notre expérience de plus de 13 ans sur le secteur , et bénéficiez d'un accompagnement intégral pour votre projet de vie : Financement , étude technique du terrain , gestion administrative . Les frais annexes ( raccordements , viabilisation , puisards, enlèvements des terres excédentaires , chemin d'accès )inclus dans le prix de cette annonce . Contactez moi pour une étude gratuite . Rendez vous en agence ou à votre domicile . VERON ANTHONY /07/77/85/58/88/