

- Prix
- 715 000 €
Maison neuve • Fresnes (94)
- Nom et prix
- Terrain à bâtir () • 715 000 €
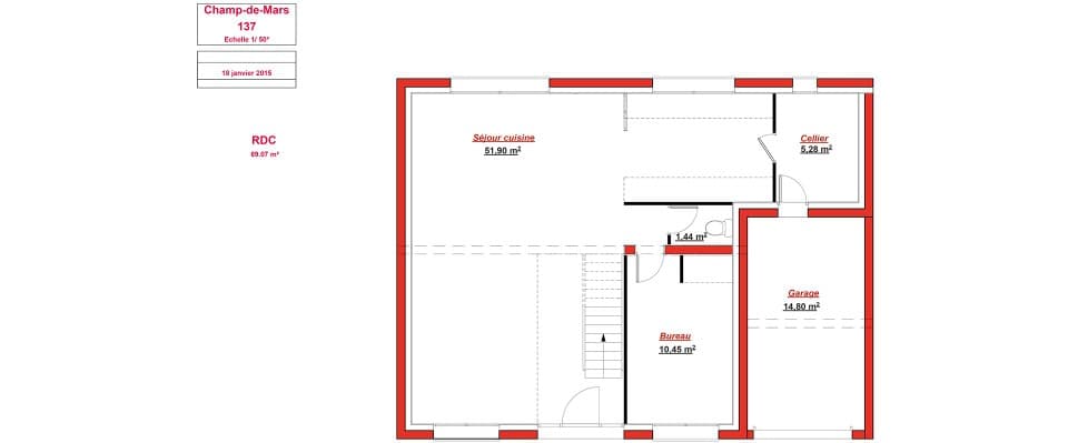
Fresnes : maison de 5 pièces (147 m²) en vente MAISON 5 PIÈCES NEUVE À vendre : à deux pas de la station Chemin d'Antony du RER C (25 min de Paris), ayez le coup de coeur pour cette maison de 5 pièces de 147 m² à Fresnes (94260). Cette maison comporte 2 niveaux. Son intérieur propose trois chambres, une cuisine et deux salles de bains. La maison est neuve. Le terrain de la propriété s'étend sur 390 m². Tous les types d'établissements scolaires (de la maternelle au lycée) sont implantés à moins de 10 minutes à pied, tout comme quatre structures d'accueil pour les tout-petits. Niveau transports en commun, on trouve trois lignes de RER (C, B et D) ainsi que 45 gares à moins de 10 minutes en voiture. Il y a une bibliothèque, trois tennis, des commerces, des boulangeries, des supermarchés, un bureau de poste et quatre boucheries-charcuteries à proximité. Enfin, le marché Avenue Paul Vaillant Couturier a lieu chaque dimanche matin. Son prix de vente est de 715 000 €. Prenez contact avec Franck THAREAU (tél : 01-48-81-08-79) pour tout renseignement sur la maison ou sur les démarches à suivre. Maisons Berval Le Perreux-sur-Marne vous accompagne à toutes les étapes de l'achat et dans tous vos projets immobiliers.












