

- Prix
- 160 400 €
Maison neuve • RUE DU PONT DES PLANCHES (77)
- Nom et prix
- Projet de construction d'une maison 102 m² avec terrain à ETREPILLY (77) • 160 400 €
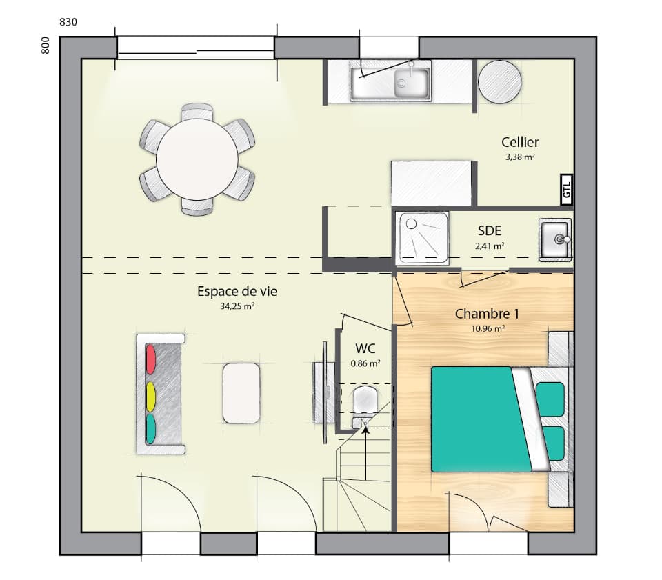
A ETREPILLY sur un terrain de 1220 m², MAISONS SESAME vous propose de réaliser cette maison neuve d'une surface de 102 m² habitables avec 4 chambres. Votre future maison familiale, confortable et lumineuse Imaginez une maison pensée pour le bonheur de toute la famille, moderne, chaleureuse, et respectueuse de l'environnement. Au rez-de-chaussée, vous profitez d’une grande pièce de vie de plus de 30 m², baignée de lumière, ouverte sur un joli jardin carré. La cuisine, ouverte et conviviale, est prolongée par un cellier pratique. Une chambre est également disponible, parfaite pour un bureau, une chambre d'amis ou pour un membre de la famille. À l'étage, chacun trouve son espace : Une suite parentale avec salle d’eau privative, Trois belles chambres, Une salle de bain commune idéale pour les enfants. Le plan est modulable selon vos envies, pour que votre maison vous ressemble vraiment. Construite selon les dernières normes environnementales, elle allie confort, économies d'énergie et qualité de vie au quotidien. Venez découvrir un lieu où il fait bon vivre ! Informations du terrain : TERRAIN A BATIR GRANDE SUPERFICIE Façade de 12 mètres. Possibilité de construire un R+1. Plus de renseignements auprès de Rafaël des Maisons Sésame :06/62/37/09/82 Étude gratuite de votre projet de construction ! De nombreux terrains disponibles dans votre secteur. Informations légales : Maisons Sésame, constructeur de maisons individuelles, propose une sélection de terrains en collaboration avec ses partenaires fonciers, sous réserve de disponibilité. Il n’agit pas en tant que mandataire pour la vente de ces terrains. Nos maisons, certifiées NF Habitat et conformes à la réglementation thermique en vigueur, vous garantissent un habitat durable et économe en énergie. Découvrez un large choix de modèles adaptés aux besoins de toute la famille. Informations tarifaires : Les prix indiqués sont donnés à titre indicatif et n’incluent pas les frais annexes (frais de notaire, raccordements, etc.). Les visuels et prix présentés sont non contractuels. Pour plus de détails, consultez nos conditions en agence. N° ORIAS IOBSP 13007108 – RCS Versailles 388 867 426. Les informations sur les risques auxquels ce bien est exposé sont disponibles sur le site Géorisques : www.georisques.gouv.fr Cette annonce a été créée et diffusée avec le logiciel VITAHOME. Contactez Rafaël MOREAU au 06-62-37-09-82 ou au 01 60 09 18 88 (Maisons Sésame - Agence de Mareuil les Meaux).











