

- Prix
- 165 000 €
Maison neuve • CLAYE-SOUILLY (77)
- Nom et prix
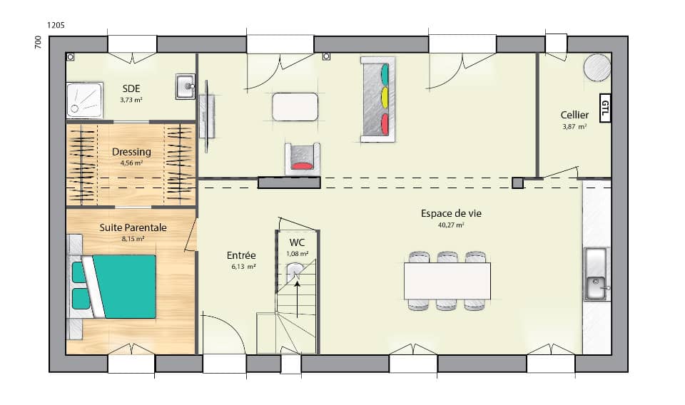
- Projet de construction d'une maison 110 m² avec terrain à CLAYE-SOUILLY (77) • 165 000 €
Terrain plat, bien orienté et situé en plein quartier pavillonnaire. Rare sur le secteur sélectionné et vu pour vous. Faites construire cette Maison Sésame de 110². Réalisez, avec l'aide de votre conseiller commercial Alex BUHOT 06/23/01/07/95, vos plans de maison sur mesure. Choisissez la taille de votre salon, de vos chambres et de toutes les autres pièces de votre future maison. Personnalisez l’extérieur de votre maison, qu'elle soit en plain-pied, à étage ou à combles. C'est vous qui décidez ! Nos plans sont entièrement modifiables et personnalisables. Prix indiqué hors frais annexes et frais de notaires et en fonction de la disponibilité foncière. Contactez votre conseiller commercial Alex BUHOT au 06/23/01/07/95 - Eligible au PTZ - Selon éligibilité au nouveau PTZ financez jusqu'à 30% de mon logement sans payer d'intérêt. ** - Maison 100% NF - A la pointe des performances énergétique. Photos et illustrations non contractuelles. Non mandaté pour réaliser la vente- Terrains sous réserve des disponibilités de notre partenaire fonciers. *Prix indicatif hors frais de notaire, peinture, revêtements de sol- Voir condition en agence- N°ORIAS IOBSP 13007108. Étude gratuite de votre projet de construction ! De nombreux terrains disponibles dans votre secteur. Informations légales : Maisons Sésame, constructeur de maisons individuelles, propose une sélection de terrains en collaboration avec ses partenaires fonciers, sous réserve de disponibilité. Il n’agit pas en tant que mandataire pour la vente de ces terrains. Nos maisons, certifiées NF Habitat et conformes à la réglementation thermique en vigueur, vous garantissent un habitat durable et économe en énergie. Découvrez un large choix de modèles adaptés aux besoins de toute la famille. Informations tarifaires : Les prix indiqués sont donnés à titre indicatif et n’incluent pas les frais annexes (frais de notaire, raccordements, etc.). Les visuels et prix présentés sont non contractuels. Pour plus de détails, consultez nos conditions en agence. N° ORIAS IOBSP 13007108 – RCS Versailles 388 827 426. Cette annonce a été créée et diffusée avec le logiciel VITAHOME. Contactez Alex BUHOT au 06 23 01 07 95 ou au 01 48 19 23 33 (Maisons Sésame - Agence d'Aulnay sous bois).






