logo de nos-terrains.com

1480 maisons neuves à vendre à Mere (78)

Résultats de recherche

Maison neuve - Projet de construction d'une maison 132 m² avec terrain à MONTFORT-L'AMAURY (78) à 5 rue de la gare (78), prix 187 072 €
187 072 €
132 m²
1417 €/m²

Maison neuve5 rue de la gare (78)

A MONTFORT-L'AMAURY sur un terrain de 450 m², MAISONS SESAME vous propose de réaliser cette maison neuve d'une surface de 132 m² habitables avec 5 chambres. Le modèle PYROPE 130 4 pans est une maison de 132 m², dotée d'un toit à 4 pans qui lui confère un design cossu et une silhouette élégante avec son fronton et son porche rentrant. Ce toit spécifique apporte une touche de caractère et d'originalité à l'ensemble de la maison. Au rez-de-chaussée, vous trouverez un bureau, idéal pour travailler à domicile, ainsi qu'une entrée spacieuse qui mène à un grand séjour lumineux, ouvert sur une cuisine pratique. Ce niveau comprend également un WC séparé. À l’étage, les quatre chambres sont bien agencées, dont une suite parentale avec sa propre salle de douche. Le modèle PYROPE 130 4 pans offre un parfait équilibre entre confort, fonctionnalité et esthétique. MAISONS SÉSAME vous propose les prestations suivantes : - Plans des maisons modulables et adaptables selon vos besoins et les spécificités de votre terrain - Large choix de systèmes de chauffage performants et économes en énergie - Sélection de matériaux de qualité garantissant confort et durabilité - Accompagnement sur-mesure pour la recherche et l’acquisition de votre terrain - Construction conforme à la réglementation en vigueur et à la norme RE2020 - Maisons certifiées NF HABITAT, gage de qualité, de performance et de confort Informations du terrain : PROCHE GARE ET COMMERCE Demandez une étude gratuite et personnalisée de votre projet de construction ! Étude gratuite de votre projet de construction ! De nombreux terrains disponibles dans votre secteur. Informations légales : Maisons Sésame, constructeur de maisons individuelles, propose une sélection de terrains en collaboration avec ses partenaires fonciers, sous réserve de disponibilité. Il n’agit pas en tant que mandataire pour la vente de ces terrains. Nos maisons, certifiées NF Habitat et conformes à la réglementation thermique en vigueur, vous garantissent un habitat durable et économe en énergie. Découvrez un large choix de modèles adaptés aux besoins de toute la famille. Informations tarifaires : Les prix indiqués sont donnés à titre indicatif et n’incluent pas les frais annexes (frais de notaire, raccordements, etc.). Les visuels et prix présentés sont non contractuels. Pour plus de détails, consultez nos conditions en agence. N° ORIAS IOBSP 13007108 – RCS Versailles 388 867 426. Les informations sur les risques auxquels ce bien est exposé sont disponibles sur le site Géorisques : www.georisques.gouv.fr Cette annonce a été créée et diffusée avec le logiciel VITAHOME. Contactez Rayan BELKAID au 07 62 21 51 00 ou au 01 82 20 01 50 (Maisons Sésame - Agence de Coignières).

Proposé par MAISONS SÉSAME

Maison neuve - Projet de construction d'une maison 132 m² avec terrain à MONTFORT-L'AMAURY (78) à MONTFORT-L'AMAURY (78), prix 187 072 €
187 072 €
132 m²
1417 €/m²

Maison neuveMONTFORT-L'AMAURY (78)

PROFITEZ DU PTZ EN 2025, LES DERNIERES AFFAIRES A SAISIR EN MAISONS INDIVIDUELLES ! Saisissez l'opportunité de faire construire VOTRE MAISON INDIVIDUELLE, dans un cadre calme et agréable. A MONTFORT-L'AMAURY sur un terrain de 400 m², MAISONS SESAME vous propose de réaliser cette maison neuve d'une surface de 132 m² habitables avec 5 chambres. Le modèle PYROPE 130 4 pans est une maison de 132 m², dotée d'un toit à 4 pans qui lui confère un design cossu et une silhouette élégante avec son fronton et son porche rentrant. Ce toit spécifique apporte une touche de caractère et d'originalité à l'ensemble de la maison. Au rez-de-chaussée, vous trouverez un bureau, idéal pour travailler à domicile, ainsi qu'une entrée spacieuse qui mène à un grand séjour lumineux, ouvert sur une cuisine pratique. Ce niveau comprend également un WC séparé. À l’étage, les quatre chambres sont bien agencées, dont une suite parentale avec sa propre salle de douche. Le modèle PYROPE 130 4 pans offre un parfait équilibre entre confort, fonctionnalité et esthétique. MAISONS SÉSAME vous propose les prestations suivantes : - Plans des maisons modulables et adaptables selon vos besoins et les spécificités de votre terrain - Large choix de systèmes de chauffage performants et économes en énergie - Sélection de matériaux de qualité garantissant confort et durabilité - Accompagnement sur-mesure pour la recherche et l’acquisition de votre terrain - Construction conforme à la réglementation en vigueur et à la norme RE2020 - Maisons certifiées NF HABITAT, gage de qualité, de performance et de confort Informations du terrain : Gare à proximité Ecoles Commerces Demandez une étude gratuite et personnalisée de votre projet de construction ! Étude gratuite de votre projet de construction ! De nombreux terrains disponibles dans votre secteur. Informations légales : Maisons Sésame, constructeur de maisons individuelles, propose une sélection de terrains en collaboration avec ses partenaires fonciers, sous réserve de disponibilité. Il n’agit pas en tant que mandataire pour la vente de ces terrains. Nos maisons, certifiées NF Habitat et conformes à la réglementation thermique en vigueur, vous garantissent un habitat durable et économe en énergie. Découvrez un large choix de modèles adaptés aux besoins de toute la famille. Informations tarifaires : Les prix indiqués sont donnés à titre indicatif et n’incluent pas les frais annexes (frais de notaire, raccordements, etc.). Les visuels et prix présentés sont non contractuels. Pour plus de détails, consultez nos conditions en agence. N° ORIAS IOBSP 13007108 – RCS Versailles 388 867 426. Les informations sur les risques auxquels ce bien est exposé sont disponibles sur le site Géorisques : www.georisques.gouv.fr Cette annonce a été créée et diffusée avec le logiciel VITAHOME. Contactez Alexis DE NEIVA au 06 59 31 66 48 ou au 01 82 20 01 50 (Maisons Sésame - Agence de Coignières).

Proposé par MAISONS SÉSAME

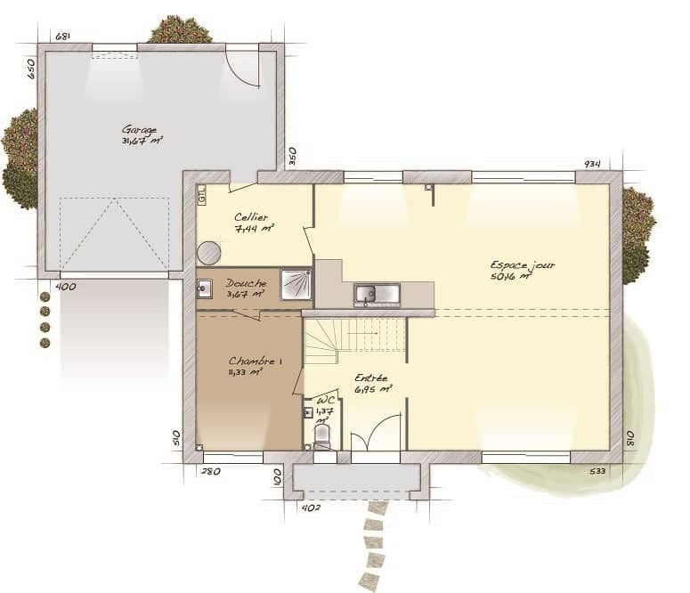
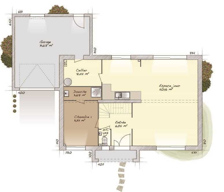
Maison neuve - Projet de construction d'une maison 180 m² avec terrain à MERE (78) à 3 RUE FRANCOIS QUESNAY (78), prix 535 000 €
535 000 €
180 m²
2972 €/m²

Maison neuve3 RUE FRANCOIS QUESNAY (78)

une MAISON de 180m²aux dernières normes RE 2020, certification NF , briques thermique, vous proposant au rez de chaussée : un grand espace salon séjour/cuisine, grandes baie vitrée avec accès direct sur le jardin , une suite parentale avec sa salle d’eau , wc et à l’étage : 2 belles chambres , une salle de jeux ,salle d'eau, salle de bains, wc . Informations du terrain : CENTRE VILLE Le Pavillon Français construit des maisons sur-mesure alliant design, caractère et qualité depuis plus de 30 ans. Chaque projet est unique : vous choisissez la configuration, les matériaux, les finitions… nous concrétisons votre vision. Nos constructions sont encadrées par le CCMI, un contrat garantissant un prix définitif et des délais de livraison précis. Grâce à notre certification NF Habitat, vous bénéficiez d’un haut niveau de confort, de performance et de durabilité. Avec un accompagnement personnalisé à chaque étape, nous faisons de votre maison un lieu unique qui vous ressemble. Faites confiance à un constructeur Construction aux normes RE2020. Prix avec assurance dommages-ouvrage comprise, hors VRD, terrain non viabilisé, frais de notaire non compris, frais divers non compris. Terrain sélectionné et vu pour vous sous réserve de disponibilité et au prix indiqué par notre partenaire foncier. Conditions et visuels non contractuels. Cette annonce a été créée et diffusée avec le logiciel VITAHOME. Contactez Carlos DE SA au 06 70 88 52 85 (Le Pavillon Français - Agence de Rambouillet).

Proposé par LE PAVILLON FRANÇAIS

Maison neuve - Projet de construction d'une maison 132 m² avec terrain à MONTFORT-L'AMAURY (78) à 5 rue de la gare (78), prix 187 072 €
187 072 €
132 m²
1417 €/m²

Maison neuve5 rue de la gare (78)

A MONTFORT-L'AMAURY sur un terrain de 450 m², MAISONS SESAME vous propose de réaliser cette maison neuve d'une surface de 132 m² habitables avec 5 chambres. Le modèle PYROPE 130 4 pans est une maison de 132 m², dotée d'un toit à 4 pans qui lui confère un design cossu et une silhouette élégante avec son fronton et son porche rentrant. Ce toit spécifique apporte une touche de caractère et d'originalité à l'ensemble de la maison. Au rez-de-chaussée, vous trouverez un bureau, idéal pour travailler à domicile, ainsi qu'une entrée spacieuse qui mène à un grand séjour lumineux, ouvert sur une cuisine pratique. Ce niveau comprend également un WC séparé. À l’étage, les quatre chambres sont bien agencées, dont une suite parentale avec sa propre salle de douche. Le modèle PYROPE 130 4 pans offre un parfait équilibre entre confort, fonctionnalité et esthétique. MAISONS SÉSAME vous propose les prestations suivantes : - Plans des maisons modulables et adaptables selon vos besoins et les spécificités de votre terrain - Large choix de systèmes de chauffage performants et économes en énergie - Sélection de matériaux de qualité garantissant confort et durabilité - Accompagnement sur-mesure pour la recherche et l’acquisition de votre terrain - Construction conforme à la réglementation en vigueur et à la norme RE2020 - Maisons certifiées NF HABITAT, gage de qualité, de performance et de confort Informations du terrain : PROCHE GARE ET COMMERCE Demandez une étude gratuite et personnalisée de votre projet de construction ! Étude gratuite de votre projet de construction ! De nombreux terrains disponibles dans votre secteur. Informations légales : Maisons Sésame, constructeur de maisons individuelles, propose une sélection de terrains en collaboration avec ses partenaires fonciers, sous réserve de disponibilité. Il n’agit pas en tant que mandataire pour la vente de ces terrains. Nos maisons, certifiées NF Habitat et conformes à la réglementation thermique en vigueur, vous garantissent un habitat durable et économe en énergie. Découvrez un large choix de modèles adaptés aux besoins de toute la famille. Informations tarifaires : Les prix indiqués sont donnés à titre indicatif et n’incluent pas les frais annexes (frais de notaire, raccordements, etc.). Les visuels et prix présentés sont non contractuels. Pour plus de détails, consultez nos conditions en agence. N° ORIAS IOBSP 13007108 – RCS Versailles 388 867 426. Les informations sur les risques auxquels ce bien est exposé sont disponibles sur le site Géorisques : www.georisques.gouv.fr Cette annonce a été créée et diffusée avec le logiciel VITAHOME. Contactez Rayan BELKAID au 07 62 21 51 00 ou au 01 82 20 01 50 (Maisons Sésame - Agence de Coignières).

Proposé par MAISONS SÉSAME

Maison neuve - Projet de construction d'une maison 132 m² avec terrain à MONTFORT-L'AMAURY (78) à 5 rue de la gare (78), prix 187 072 €
187 072 €
132 m²
1417 €/m²

Maison neuve5 rue de la gare (78)

A MONTFORT-L'AMAURY sur un terrain de 450 m², MAISONS SESAME vous propose de réaliser cette maison neuve d'une surface de 132 m² habitables avec 5 chambres. Le modèle PYROPE 130 4 pans est une maison de 132 m², dotée d'un toit à 4 pans qui lui confère un design cossu et une silhouette élégante avec son fronton et son porche rentrant. Ce toit spécifique apporte une touche de caractère et d'originalité à l'ensemble de la maison. Au rez-de-chaussée, vous trouverez un bureau, idéal pour travailler à domicile, ainsi qu'une entrée spacieuse qui mène à un grand séjour lumineux, ouvert sur une cuisine pratique. Ce niveau comprend également un WC séparé. À l’étage, les quatre chambres sont bien agencées, dont une suite parentale avec sa propre salle de douche. Le modèle PYROPE 130 4 pans offre un parfait équilibre entre confort, fonctionnalité et esthétique. MAISONS SÉSAME vous propose les prestations suivantes : - Plans des maisons modulables et adaptables selon vos besoins et les spécificités de votre terrain - Large choix de systèmes de chauffage performants et économes en énergie - Sélection de matériaux de qualité garantissant confort et durabilité - Accompagnement sur-mesure pour la recherche et l’acquisition de votre terrain - Construction conforme à la réglementation en vigueur et à la norme RE2020 - Maisons certifiées NF HABITAT, gage de qualité, de performance et de confort Informations du terrain : PROCHE GARE ET COMMERCE Demandez une étude gratuite et personnalisée de votre projet de construction ! Étude gratuite de votre projet de construction ! De nombreux terrains disponibles dans votre secteur. Informations légales : Maisons Sésame, constructeur de maisons individuelles, propose une sélection de terrains en collaboration avec ses partenaires fonciers, sous réserve de disponibilité. Il n’agit pas en tant que mandataire pour la vente de ces terrains. Nos maisons, certifiées NF Habitat et conformes à la réglementation thermique en vigueur, vous garantissent un habitat durable et économe en énergie. Découvrez un large choix de modèles adaptés aux besoins de toute la famille. Informations tarifaires : Les prix indiqués sont donnés à titre indicatif et n’incluent pas les frais annexes (frais de notaire, raccordements, etc.). Les visuels et prix présentés sont non contractuels. Pour plus de détails, consultez nos conditions en agence. N° ORIAS IOBSP 13007108 – RCS Versailles 388 867 426. Les informations sur les risques auxquels ce bien est exposé sont disponibles sur le site Géorisques : www.georisques.gouv.fr Cette annonce a été créée et diffusée avec le logiciel VITAHOME. Contactez Rayan BELKAID au 07 62 21 51 00 ou au 01 82 20 01 50 (Maisons Sésame - Agence de Coignières).

Proposé par MAISONS SÉSAME

Maison neuve - Projet de construction d'une maison 97 m² avec terrain à MONTFORT-L'AMAURY (78) à MONTFORT-L'AMAURY (78), prix 154 522 €
154 522 €
97 m²
1593 €/m²

Maison neuveMONTFORT-L'AMAURY (78)

PROFITEZ DU PTZ EN 2025, LES DERNIERES AFFAIRES A SAISIR EN MAISONS INDIVIDUELLES ! Saisissez l'opportunité de faire construire VOTRE MAISON INDIVIDUELLE, dans un cadre calme et agréable. A MONTFORT-L'AMAURY sur un terrain de 400 m², MAISONS SESAME vous propose de réaliser cette maison neuve d'une surface de 97 m² habitables avec 3 chambres. Le modèle SAPHIR 100 est une maison de 97 m² qui séduit par son design élégant, particulièrement souligné par son fronton sur la façade, ajoutant une touche de raffinement et de caractère à l'ensemble. Au rez-de-chaussée, la maison dispose d'un grand séjour lumineux, une cuisine ouverte et un bureau qui peut également servir d’espace pour télétravail, ainsi qu'un WC séparé pour plus de praticité. À l’étage, vous trouverez 3 chambres spacieuses, idéales pour accueillir toute la famille, ainsi qu'une salle de bain commune, offrant tout le confort nécessaire. Le SAPHIR 100 est un modèle parfait pour ceux qui recherchent une maison fonctionnelle avec un design moderne et soigné, tout en étant adaptée aux besoins contemporains, comme l'intégration d’un bureau pour télétravail. MAISONS SÉSAME vous propose les prestations suivantes : - Plans des maisons modulables et adaptables selon vos besoins et les spécificités de votre terrain - Large choix de systèmes de chauffage performants et économes en énergie - Sélection de matériaux de qualité garantissant confort et durabilité - Accompagnement sur-mesure pour la recherche et l’acquisition de votre terrain - Construction conforme à la réglementation en vigueur et à la norme RE2020 - Maisons certifiées NF HABITAT, gage de qualité, de performance et de confort Informations du terrain : Gare à proximité Ecoles Commerces Demandez une étude gratuite et personnalisée de votre projet de construction ! Étude gratuite de votre projet de construction ! De nombreux terrains disponibles dans votre secteur. Informations légales : Maisons Sésame, constructeur de maisons individuelles, propose une sélection de terrains en collaboration avec ses partenaires fonciers, sous réserve de disponibilité. Il n’agit pas en tant que mandataire pour la vente de ces terrains. Nos maisons, certifiées NF Habitat et conformes à la réglementation thermique en vigueur, vous garantissent un habitat durable et économe en énergie. Découvrez un large choix de modèles adaptés aux besoins de toute la famille. Informations tarifaires : Les prix indiqués sont donnés à titre indicatif et n’incluent pas les frais annexes (frais de notaire, raccordements, etc.). Les visuels et prix présentés sont non contractuels. Pour plus de détails, consultez nos conditions en agence. N° ORIAS IOBSP 13007108 – RCS Versailles 388 867 426. Les informations sur les risques auxquels ce bien est exposé sont disponibles sur le site Géorisques : www.georisques.gouv.fr Cette annonce a été créée et diffusée avec le logiciel VITAHOME. Contactez Alexis DE NEIVA au 06 59 31 66 48 ou au 01 82 20 01 50 (Maisons Sésame - Agence de Coignières).

Proposé par MAISONS SÉSAME

Maison neuve - Projet de construction d'une maison 122 m² avec terrain à GALLUIS (78) à GALLUIS (78), prix 171 335 €
171 335 €
122 m²
1404 €/m²

Maison neuveGALLUIS (78)

A GALLUIS sur un terrain de 615 m², MAISONS SESAME vous propose de réaliser cette maison neuve d'une surface de 122 m² habitables avec 5 chambres. Le modèle ATRIA 125 est une maison à étage de 122 m², offrant un espace de vie généreux et bien agencé pour une famille moderne. Le rez-de-chaussée comprend une chambre, qui peut également être utilisée comme bureau pour le télétravail. Vous y trouverez également une belle entrée, ainsi qu'une cuisine fermée pour plus d'intimité et de confort. Ce niveau dispose aussi d’une salle de bains et d’un WC séparé, optimisant l’espace de manière pratique. À l'étage, vous découvrirez 4 chambres spacieuses, accompagnées d'une salle de bains supplémentaire, garantissant confort et fonctionnalité pour toute la famille. Le modèle ATRIA 125 combine espace, confort et praticité pour répondre aux besoins de votre famille. MAISONS SÉSAME vous propose les prestations suivantes : - Plans des maisons modulables et adaptables selon vos besoins et les spécificités de votre terrain - Large choix de systèmes de chauffage performants et économes en énergie - Sélection de matériaux de qualité garantissant confort et durabilité - Accompagnement sur-mesure pour la recherche et l’acquisition de votre terrain - Construction conforme à la réglementation en vigueur et à la norme RE2020 - Maisons certifiées NF HABITAT, gage de qualité, de performance et de confort Demandez une étude gratuite et personnalisée de votre projet de construction ! Étude gratuite de votre projet de construction ! De nombreux terrains disponibles dans votre secteur. Informations légales : Maisons Sésame, constructeur de maisons individuelles, propose une sélection de terrains en collaboration avec ses partenaires fonciers, sous réserve de disponibilité. Il n’agit pas en tant que mandataire pour la vente de ces terrains. Nos maisons, certifiées NF Habitat et conformes à la réglementation thermique en vigueur, vous garantissent un habitat durable et économe en énergie. Découvrez un large choix de modèles adaptés aux besoins de toute la famille. Informations tarifaires : Les prix indiqués sont donnés à titre indicatif et n’incluent pas les frais annexes (frais de notaire, raccordements, etc.). Les visuels et prix présentés sont non contractuels. Pour plus de détails, consultez nos conditions en agence. N° ORIAS IOBSP 13007108 – RCS Versailles 388 827 426. Cette annonce a été créée et diffusée avec le logiciel VITAHOME. Contactez Mihail AZAROV au 06 40 32 23 45 ou au 01 34 97 32 29 (Maisons Sésame - Agence de Mantes la Jolie).

Proposé par MAISONS SÉSAME

Maison neuve - Projet de construction d'une maison 122 m² avec terrain à GALLUIS (78) à GALLUIS (78), prix 171 335 €
171 335 €
122 m²
1404 €/m²

Maison neuveGALLUIS (78)

A GALLUIS sur un terrain de 615 m², MAISONS SESAME vous propose de réaliser cette maison neuve d'une surface de 122 m² habitables avec 5 chambres. Le modèle ATRIA 125 est une maison à étage de 122 m², offrant un espace de vie généreux et bien agencé pour une famille moderne. Le rez-de-chaussée comprend une chambre, qui peut également être utilisée comme bureau pour le télétravail. Vous y trouverez également une belle entrée, ainsi qu'une cuisine fermée pour plus d'intimité et de confort. Ce niveau dispose aussi d’une salle de bains et d’un WC séparé, optimisant l’espace de manière pratique. À l'étage, vous découvrirez 4 chambres spacieuses, accompagnées d'une salle de bains supplémentaire, garantissant confort et fonctionnalité pour toute la famille. Le modèle ATRIA 125 combine espace, confort et praticité pour répondre aux besoins de votre famille. MAISONS SÉSAME vous propose les prestations suivantes : - Plans des maisons modulables et adaptables selon vos besoins et les spécificités de votre terrain - Large choix de systèmes de chauffage performants et économes en énergie - Sélection de matériaux de qualité garantissant confort et durabilité - Accompagnement sur-mesure pour la recherche et l’acquisition de votre terrain - Construction conforme à la réglementation en vigueur et à la norme RE2020 - Maisons certifiées NF HABITAT, gage de qualité, de performance et de confort Demandez une étude gratuite et personnalisée de votre projet de construction ! Étude gratuite de votre projet de construction ! De nombreux terrains disponibles dans votre secteur. Informations légales : Maisons Sésame, constructeur de maisons individuelles, propose une sélection de terrains en collaboration avec ses partenaires fonciers, sous réserve de disponibilité. Il n’agit pas en tant que mandataire pour la vente de ces terrains. Nos maisons, certifiées NF Habitat et conformes à la réglementation thermique en vigueur, vous garantissent un habitat durable et économe en énergie. Découvrez un large choix de modèles adaptés aux besoins de toute la famille. Informations tarifaires : Les prix indiqués sont donnés à titre indicatif et n’incluent pas les frais annexes (frais de notaire, raccordements, etc.). Les visuels et prix présentés sont non contractuels. Pour plus de détails, consultez nos conditions en agence. N° ORIAS IOBSP 13007108 – RCS Versailles 388 827 426. Cette annonce a été créée et diffusée avec le logiciel VITAHOME. Contactez Mihail AZAROV au 06 40 32 23 45 ou au 01 84 29 33 10 (Maisons Sésame - Agence de Cormeilles en Parisis).

Proposé par MAISONS SÉSAME

Maison neuve - Projet de construction d'une maison 122 m² avec terrain à GALLUIS (78) à GALLUIS (78), prix 171 335 €
171 335 €
122 m²
1404 €/m²

Maison neuveGALLUIS (78)

A GALLUIS sur un terrain de 615 m², MAISONS SESAME vous propose de réaliser cette maison neuve d'une surface de 122 m² habitables avec 5 chambres. Le modèle ATRIA 125 est une maison à étage de 122 m², offrant un espace de vie généreux et bien agencé pour une famille moderne. Le rez-de-chaussée comprend une chambre, qui peut également être utilisée comme bureau pour le télétravail. Vous y trouverez également une belle entrée, ainsi qu'une cuisine fermée pour plus d'intimité et de confort. Ce niveau dispose aussi d’une salle de bains et d’un WC séparé, optimisant l’espace de manière pratique. À l'étage, vous découvrirez 4 chambres spacieuses, accompagnées d'une salle de bains supplémentaire, garantissant confort et fonctionnalité pour toute la famille. Le modèle ATRIA 125 combine espace, confort et praticité pour répondre aux besoins de votre famille. MAISONS SÉSAME vous propose les prestations suivantes : - Plans des maisons modulables et adaptables selon vos besoins et les spécificités de votre terrain - Large choix de systèmes de chauffage performants et économes en énergie - Sélection de matériaux de qualité garantissant confort et durabilité - Accompagnement sur-mesure pour la recherche et l’acquisition de votre terrain - Construction conforme à la réglementation en vigueur et à la norme RE2020 - Maisons certifiées NF HABITAT, gage de qualité, de performance et de confort Demandez une étude gratuite et personnalisée de votre projet de construction ! Étude gratuite de votre projet de construction ! De nombreux terrains disponibles dans votre secteur. Informations légales : Maisons Sésame, constructeur de maisons individuelles, propose une sélection de terrains en collaboration avec ses partenaires fonciers, sous réserve de disponibilité. Il n’agit pas en tant que mandataire pour la vente de ces terrains. Nos maisons, certifiées NF Habitat et conformes à la réglementation thermique en vigueur, vous garantissent un habitat durable et économe en énergie. Découvrez un large choix de modèles adaptés aux besoins de toute la famille. Informations tarifaires : Les prix indiqués sont donnés à titre indicatif et n’incluent pas les frais annexes (frais de notaire, raccordements, etc.). Les visuels et prix présentés sont non contractuels. Pour plus de détails, consultez nos conditions en agence. N° ORIAS IOBSP 13007108 – RCS Versailles 388 827 426. Cette annonce a été créée et diffusée avec le logiciel VITAHOME. Contactez Mihail AZAROV au 06 40 32 23 45 ou au 01 84 29 33 10 (Maisons Sésame - Agence de Cormeilles en Parisis).

Proposé par MAISONS SÉSAME


Illustration Maisons neuves en vente à proximité de Mere (78)

Maisons neuves en vente à proximité de Mere (78)

Méré, située dans le département des Yvelines (78), est une charmante commune française. Nichée à proximité de Montfort-l'Amaury, elle offre un cadre de vie paisible et verdoyant. La ville est connue pour son patrimoine historique, notamment son église Saint-Martin. Pour ceux qui cherchent à s'installer dans un environnement calme et authentique, Méré propose des opportunités d'achat de maisons neuves, idéales pour une vie équilibrée entre nature et commodités modernes.

Autres villes actives à Yvelines (78)


Conseils pour l'achat d'un bien immobilier

Découvrez notre sélection de maisons neuves, synonymes de confort moderne et de sérénité. Trouvez votre futur chez-vous.

L'avantage d'une maison neuve

Choisir une maison neuve, c'est bénéficier des dernières normes énergétiques (RE2020) pour des économies durables, de frais de notaire réduits, et des garanties constructeur (parfait achèvement, décennale) pour une tranquillité d'esprit.

Nos types d'annonces

Explorez nos annonces : maisons clés en main prêtes à décorer, ou programmes terrain + maison pour personnaliser certains aspects.