

- Prix
- 193 500 €
Maison neuve • Marsac (16)
- Nom et prix
- Terrain à bâtir () • 193 500 €
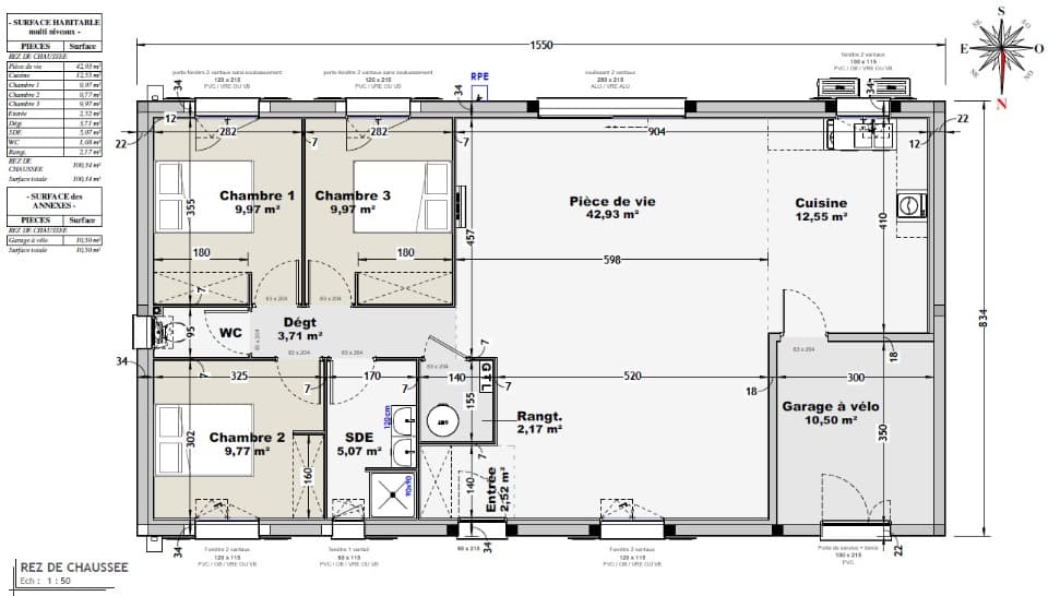
VENTE : maison de 3 pièces (100 m²) à Marsac IDÉALEMENT SITUÉE - MAISON 3 PIÈCES NEUVE À vendre entre Angoulême et Rouillac, nous vous présentons cette maison de 3 pièces de plain-pied de 100 m² et de 1 125 m² de terrain idéalement située dans Marsac (16570). Elle se divise en trois chambres, une cuisine et une salle de bains. La maison est située dans un secteur convoité. On trouve l'École Primaire Marsac à moins de 10 minutes à pied. Les nationales N141 et N10 sont accessibles à moins de 9 km. Son prix de vente est de 193 500 €. Prenez contact avec Pauline MARCHAND (tél : 06-80-96-56-78) pour obtenir de plus amples renseignements sur la propriété, sur les modalités de vente ou sur les démarches à suivre.