

- Prix
- 529 860 €
Maison neuve • Vémars (95)
- Nom et prix
- Terrain à bâtir () • 529 860 €
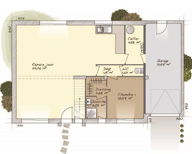
Maison RE2020 , située à VEMARS , sur un terrain de 746m² viabilisé . Proximité immédiate de l'école et de la crèche , environnement paisible et verdoyant , à 10 minutes de Roissy . Cette maison d'architecte dispose de 5 chambres avec rangements intégrés, 1 bureau , véritable entrée ,séjour carrelé ,2 salles d'eau équipées ,cellier et garage , packs alarme et domotique . Tous nos plans sont 100% personnalisables et modifiables selon vos gouts et habitudes de vie . Profitez également de notre expérience de plus de 13 ans sur le secteur , et bénéficiez d'un accompagnement intégral pour votre projet de vie : Financement , étude technique du terrain , gestion administrative . Les frais annexes ( raccordements , viabilisation , puisards, enlèvements des terres excédentaires , chemin d'accès )inclus dans le prix de cette annonce . Contactez moi pour une étude gratuite . Rendez vous en agence ou à votre domicile . VERON ANTHONY /07/77/85/58/88/











