

- Prix
- 427 900 €
Maison neuve • Montgé-en-Goële (77)
- Nom et prix
- Terrain à bâtir () • 427 900 €
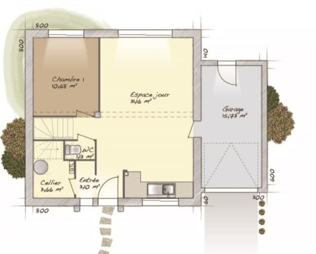
Maison de 6 pièces (133 m²) en vente à Montgé-en-Goële PROCHE DE SAINT-DENIS - MAISON 6 PIÈCES NEUVE À deux pas de la gare de Dammartin-Juilly-Saint-Mard (Paris à 30 min par le Transilien K), à vendre à Montgé-en-Goële (77230), notre agence Maisons Balency Dammartin-en-Goële est heureuse de vous proposer cette maison de 6 pièces de 133 m² et de 550 m² de terrain. Son intérieur dispose de trois chambres, d'une cuisine et de deux salles de bains. Cette maison comporte 2 niveaux. Elle est neuve. Il y a une école maternelle dans le quartier. Niveau transports en commun, on trouve la station de RER Mitry-Claye (ligne B) ainsi que cinq gares à moins de 10 minutes en voiture. On trouve un tennis et une boucherie-charcuterie dans les environs. Son prix de vente est de 427 900 €. Contactez Sébastien DARTEVELLE (tél : 06-24-63-58-60) pour obtenir de plus amples renseignements sur cette maison. Maisons Balency Dammartin-en-Goële est là pour vous accompagner à toutes les étapes de l'achat.











