

- Prix
- 409 200 €
Maison neuve • Pierrelaye (95)
- Nom et prix
- Terrain à bâtir Pierrelaye (95480) • 409 200 €
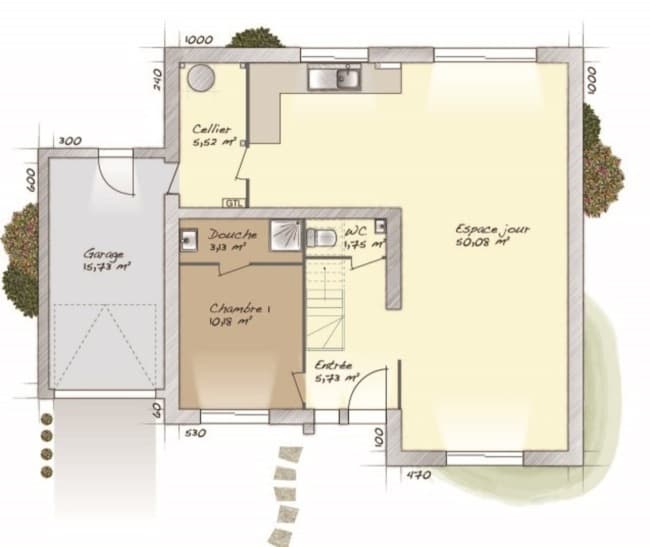
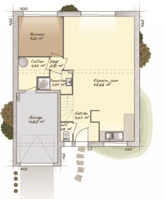
VENTE : maison F6 (112 m²) à Pierrelaye IDÉALEMENT SITUÉE - MAISON 6 PIÈCES NEUVE À vendre : à côté du Transilien H (30 min de Paris), idéalement située dans Pierrelaye (95480), Maisons Balency Pierrelaye vous présente cette maison de 6 pièces de 112 m². Elle dispose de quatre chambres, d'une cuisine et de deux salles de bains. Le terrain de la maison s'étend sur 252 m². Cette maison comporte 2 niveaux. Elle est neuve. Ce bien se trouve dans un quartier convoité. Plusieurs écoles (maternelle, élémentaire, primaire et collège) sont implantées à moins de 10 minutes à pied, tout comme une structure d'accueil pour les tout-petits. Niveau transports, on trouve la station de RER Pierrelaye (ligne C) ainsi que la gare Pierrelaye juste à côté. Il y a une bibliothèque, un bassin de natation, des boulangeries, des commerces, quatre épiceries, un bureau de poste et une boucherie-charcuterie à quelques minutes à peine. Il est à vendre pour la somme de 409 200 €. Contactez notre agence (Christophe TALAMONI : 06-49-55-08-27) pour toute information sur la maison. Maisons Balency Pierrelaye est là pour vous accompagner dans tous vos projets immobiliers.











