

- Prix
- 459 000 €
Maison neuve • Fresnes-sur-Marne (77)
- Nom et prix
- Terrain à bâtir Fresnes-sur-Marne (77410) • 459 000 €
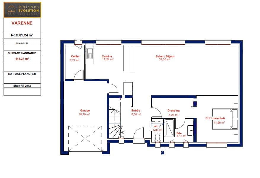
Contactez Guillaume Bordes de l'agence Maisons Evolution de Mareuil-lès-Meaux au 06.22.93.94.71 pour avoir plus d'informations sur ce projet. Découvrez cette grande et belle maison à étage de 142 m² habitables idéalement située sur la commune de Fresnes Sur Marne. Elle est composée de 5 chambres dont une suite parentale avec salle d'eau et dressing au rez-de-chaussée, d'une seconde salle de bains, de deux WC séparés, d'un cellier, et d'un grand salon-séjour lumineux avec cuisine ouverte. Vous y trouverez également une véritable entrée avec placard. De plus, cette maison dispose d'un garage intégré. Les plans sont entièrement modifiables selon vos souhaits, en agence ou visioconférence. Nous vous proposons un véritable accompagnement de qualité tout au long de votre projet. Dessinons ensemble votre future maison ! Tel : 06.22.93.94.71











