

- Prix
- 270 000 €
Maison neuve • Villers Cotterets (26)
- Nom et prix
- SAINT - PETERSBOURG • 270 000 €
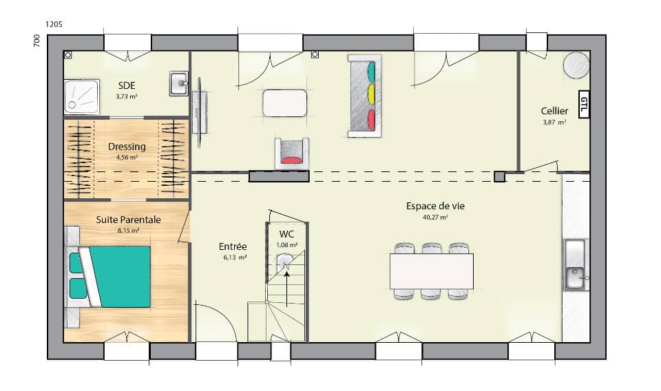
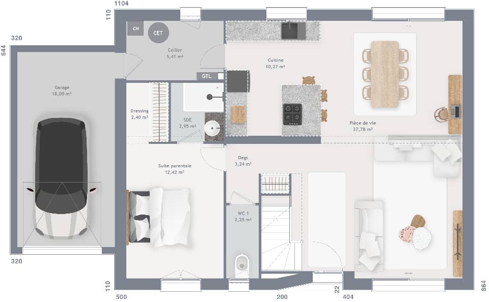
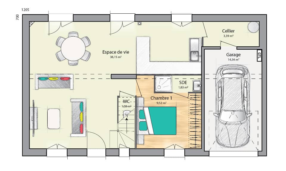
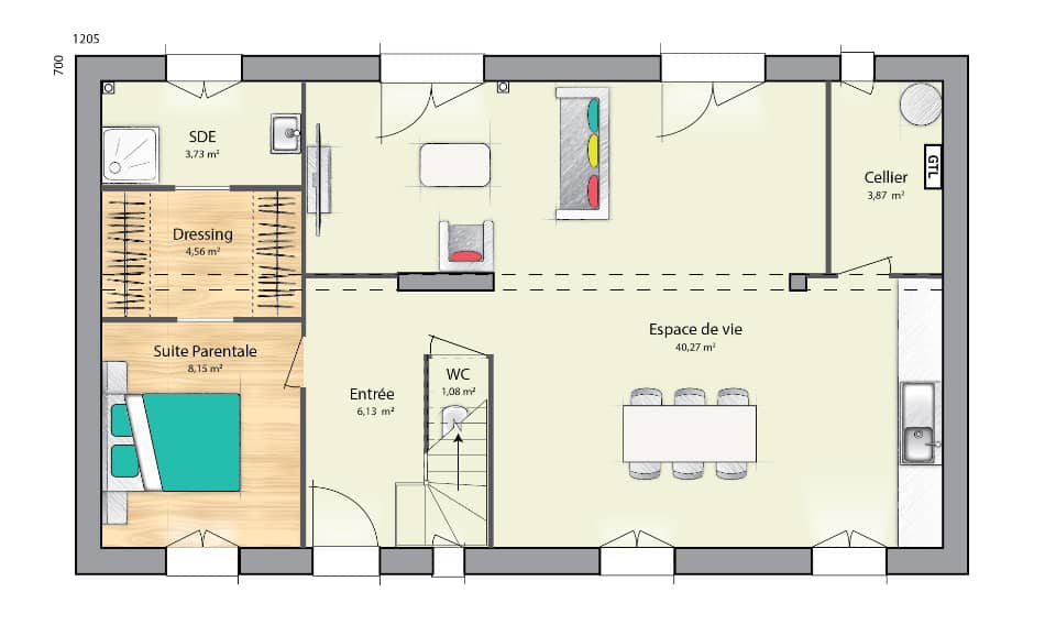
Ce modèle familial à étage d'une surface totale de 110 m², s'adaptera facilement à votre mode de vie. Ce joli pavillon dispose également d'un garage accolé. La beauté de l'architecture lui procure sa petite touche de charme. Sur un magnifique terrain situé à Villers-Cotterêts (02600) Terrain proposé par un partenaire foncier selon disponibilités . La culture chez Maisons Still est de réaliser les projets sur mesure, l'aspect intérieur de cette maison est donc entièrement modulable par vos soins, en fonction de vos besoins et de vos envies.











