

- Prix
- 356 770 €
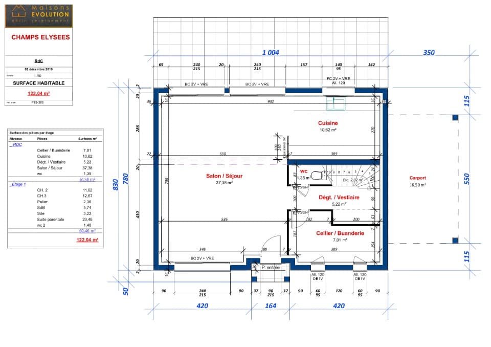
Maison neuve • Charny (77)
- Nom et prix
- Terrain à bâtir Charny (77410) • 356 770 €
Contactez Guillaume Bordes de l'agence Maisons Evolution de Mareuil-lès-Meaux au 06.22.93.94.71 pour avoir plus d'informations sur ce projet. Très jolie maison moderne de 118 m² habitables, aux dernières normes énergétiques, idéalement située sur la commune de Charny. Elle est composée de 4 grandes chambres dont 2 suites parentales avec chacune sa salle d'eau, d'une troisième salle de bains, de deux WC séparés et d'un grand salon-séjour lumineux avec cuisine ouverte donnant sur un vaste cellier/buanderie. Il est possible d'y ajouter un garage ou un carport. Les plans sont entièrement modifiables selon vos souhaits, en agence ou visioconférence. Nous vous proposons un véritable accompagnement de qualité tout au long de votre projet. Dessinons ensemble votre future maison ! Tel : 06.22.93.94.71











