

- Prix
- 440 735 €
Maison neuve • Orgeval (78)
- Nom et prix
- Terrain à bâtir () • 440 735 €
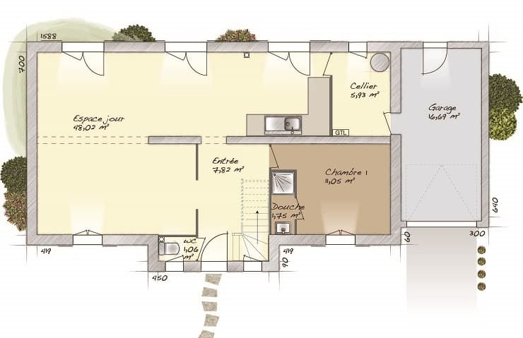
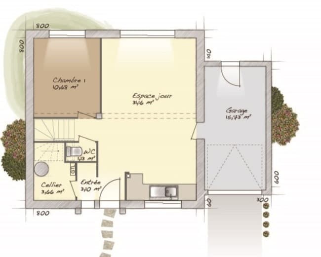
VENTE : maison de 7 pièces (125 m²) à Orgeval PROCHE DE PARIS - MAISON 7 PIÈCES NEUVE À vendre : à quelques minutes du Transilien J (gare de Villennes-sur-Seine, 20 min de Paris), nous sommes heureux de vous proposer cette maison de 7 pièces de 125 m² à Orgeval (78630). Il s'agit d'une maison de 2 niveaux. Son intérieur dispose de quatre chambres, d'une cuisine et de trois salles de bains. Cette maison est neuve. Le terrain de la propriété s'étend sur 320 m². L'École Élémentaire Privée Sainte Jeanne d'Arc et l'École Élémentaire Louis Pasteur sont implantées à moins de 10 minutes à pied. Côté transports, il y a la ligne de RER A (Poissy) ainsi que 24 gares à moins de 10 minutes en voiture. On trouve une bibliothèque, des commerces, deux boulangeries, deux supermarchés, une boucherie-charcuterie et deux épiceries à proximité. Son prix de vente est de 440 735 €. Prenez contact avec notre agence (Denis DUCOS : 06-80-06-50-40) pour toute information sur la maison. Maisons Balency Moisselles est là pour vous accompagner à toutes les étapes de l'achat.












