

- Prix
- 325 000 €
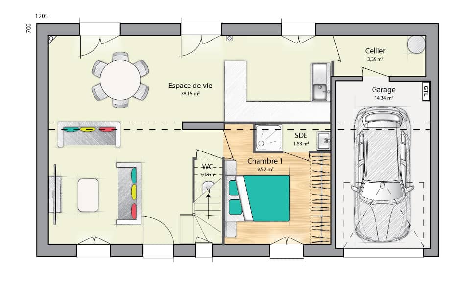
Maison neuve • Pontpoint (60)
- Nom et prix
- Terrain à bâtir () • 325 000 €
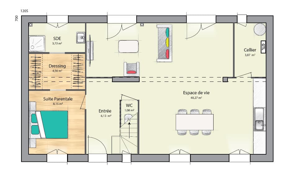
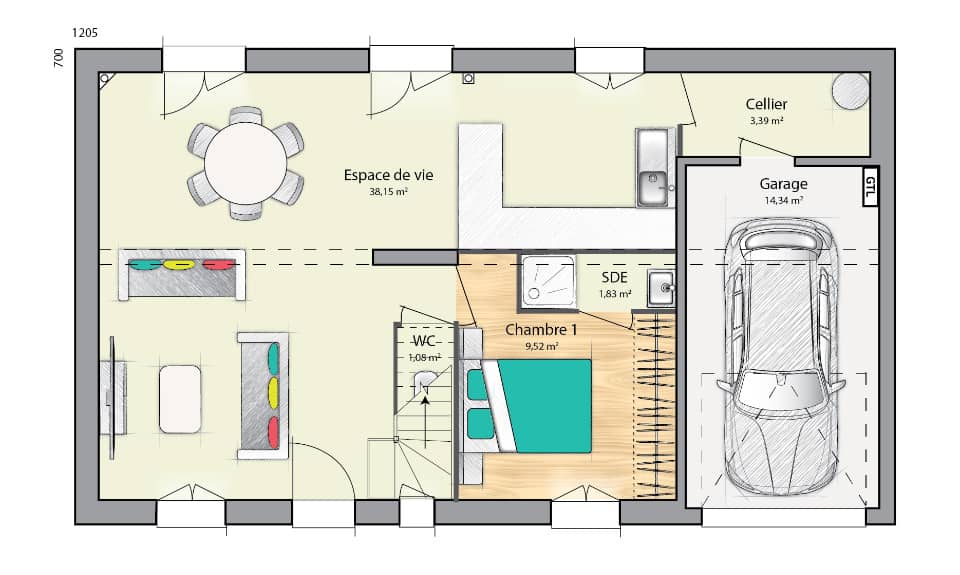
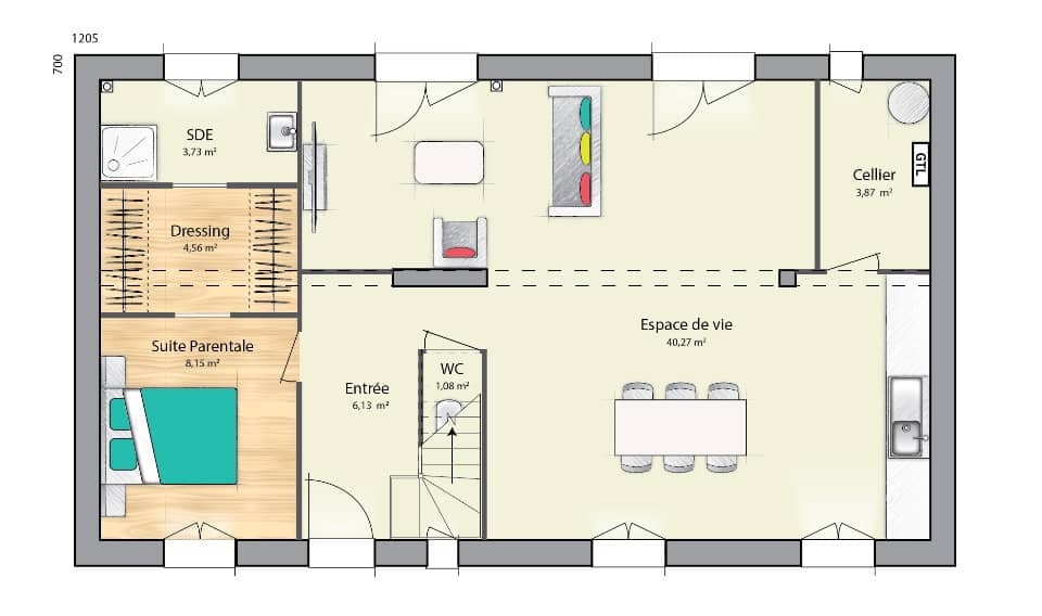
Venez concevoir votre maison sur la charmante commune de PONTPOINT, située à 10 minutes de Pont sainte Maxence, dans un cadre idyllique, verdoyant et au calme en retrait de rue. Exemple de projet maison de 105 m2 loi Carrez Tous nos projets sont entièrement réalisés sur-mesure, de nombreuses prestations incluses: baies coulissantes en aluminium, volets roulants intégrés à la maçonnerie (non-apparents) motorisés. Entrée, cuisine, pièce de vie, cellier et pièces d'eau carrelés, maison prête à décorer, clef en main. Pompe à chaleur (classe énergétique A+), plancher chauffant RDC (et ETAGE), sèche-serviettes, plusieurs choix de menuiseries intérieures, construction en brique. RE 2020. Projet terrain + maison + frais annexes. Pour tout renseignement contacter XAVIER de l'agence Maisons France Confort de COMPIEGNE : 06/16/27/53/27










