

- Prix
- 335 000 €
Maison neuve • Saintines (60)
- Nom et prix
- Terrain à bâtir () • 335 000 €
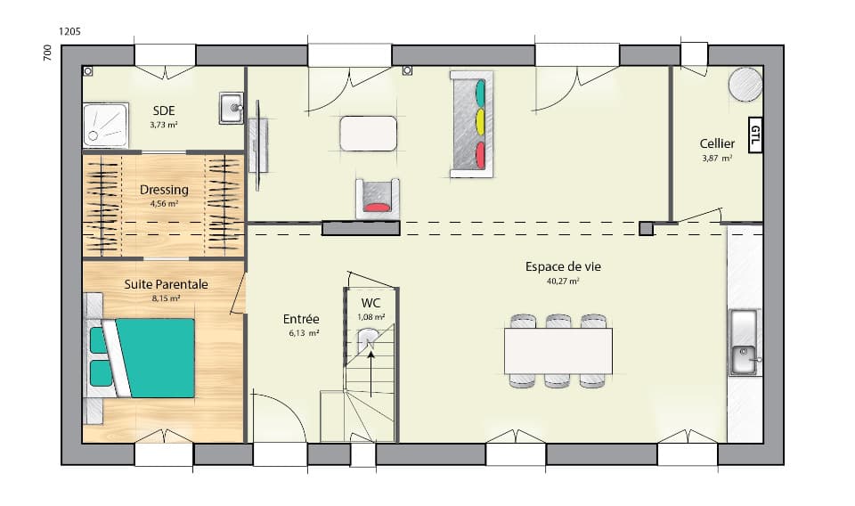
Venez concevoir votre maison sur la commune de SAINTINES (60) situé à 35 minutes de ROISSY EN FRANCE, d'une superficie de 440 m², façade de 19 ml, plat, en lot avant, secteur pavillonnaire recherché. Exemple de projet maison de 115 m² loi Carrez. Tous nos projets sont entièrement réalisés sur-mesure, de nombreuses prestations incluses: baies coulissantes en aluminium, volets roulants intégrés à la maçonnerie (non-apparents) motorisés. Entrée, cuisine, pièce de vie, cellier et pièces d'eau carrelés, Pompe à chaleur (classe énergétique A+), plancher chauffant RDC (et ETAGE), sèche-serviettes, plusieurs choix de menuiseries intérieures, construction en brique. RE 2020. Pour tout renseignement contacter XAVIER de l'agence Maisons France Confort au 06 16 27 53 27










