

- Prix
- 553 500 €
Maison neuve • Le Thillay (95)
- Nom et prix
- Terrain à bâtir Le Thillay (95500) • 553 500 €
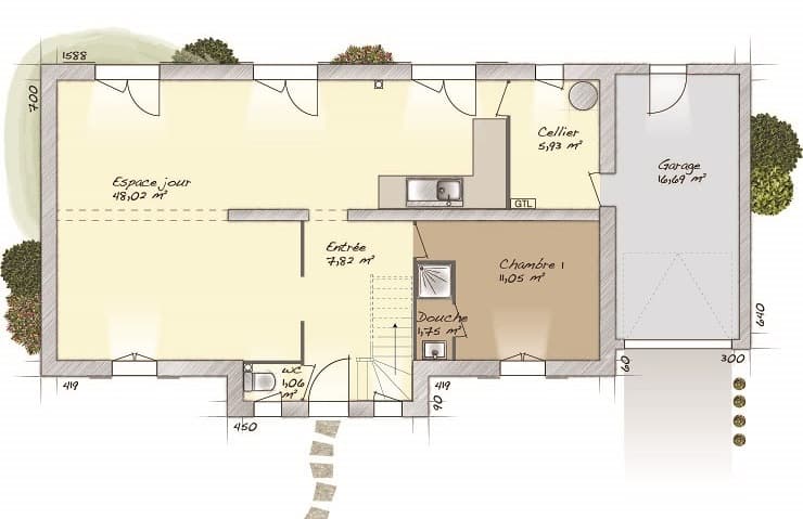
VENTE : maison de 8 pièces (145 m²) au Thillay PROCHE DE PARIS - MAISON 8 PIÈCES NEUVE Proche de la station Goussainville (Paris à 20 min avec le RER D), laissez vous charmer par en vente au Thillay (95500), cette maison de 8 pièces de 145 m². Il s'agit d'une maison de 2 niveaux. Son intérieur propose cinq chambres, une cuisine et trois salles de bains. Cette maison est neuve. Le terrain de la propriété s'étend sur 500 m². L'École Primaire les Violettes, l'École Primaire le Centre et l'École Primaire les Grands Champs sont implantées à moins de 10 minutes à pied. Côté transports, il y a deux lignes de RER (D et B) ainsi que 26 gares à moins de 10 minutes en voiture. On trouve une bibliothèque, un tennis, un supermarché, deux commerces et une boulangerie à proximité du bien. Son prix de vente est de 553 500 €. N'hésitez pas à prendre contact avec Sébastien DARTEVELLE (06-24-63-58-60) pour tout renseignement sur la propriété ou sur les modalités de vente. Maisons Balency Dammartin-en-Goële vous accompagne dans toutes vos démarches et dans tous vos projets immobiliers.












