

- Prix
- 368 000 €
Maison neuve • Balaruc-le-Vieux (34)
- Nom et prix
- Terrain à bâtir () • 368 000 €
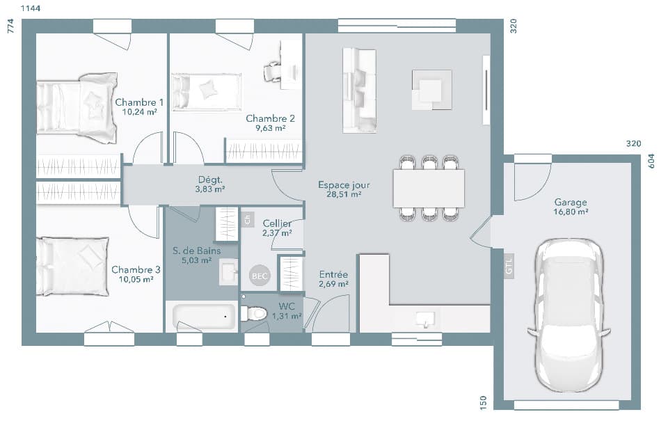
PROJET DE CONSTRUCTION - Maison de 4 pièces (73 m²) à Balaruc-le-Vieux PROCHE DE MONTPELLIER - MAISON 4 PIÈCES À vendre sur le littoral méditerranéen et à 22 km de Montpellier, nous vous proposons à Balaruc-le-Vieux (34540), cette maison de 4 pièces de plain-pied de 73 m² et de 469 m² de terrain. Son intérieur offre trois chambres, une cuisine, un cellier, une salle de bains et un garage. (Carrelage inclus dans toutes les pièces / Raccordements inclus). On trouve des écoles maternelles et élémentaires à moins de 10 minutes à pied et dont l'École Élémentaire du Mûrier Blanc. Côté transports en commun, il y a les gares Sète et Frontignan à moins de 10 minutes en voiture. On trouve un accès à l'autoroute A9 à 2 km. On trouve un tennis, des commerces, deux boulangeries, un supermarché et une boucherie-charcuterie à proximité du bien. Son prix de vente est de 368 000 €. Pour plus d'information contacter (Anthony BALLESTER : 06.27.21.51.55) Maisons France Confort Béziers pour échanger sur votre projet et réaliser une étude gratuite. (Plan personnalisable). Tous nos ouvrages sont réalisés sur-mesure en fonction de vos attentes et de nos échanges avec vous ainsi que dans le respect de la règlementation RE 2020. Ce projet comporte les garanties suivantes: Contrat de construction CCMI. Dommage/Ouvrage. RC Garantie décennale. Parfaite achèvement. Etude de sol G2. Prix et délais convenu. Garantie financière Pour votre tranquillité nous nous occupons de toutes les formalités administratives.