

- Prix
- 356 500 €
Maison neuve • Vaujours (93)
- Nom et prix
- Terrain à bâtir () • 356 500 €
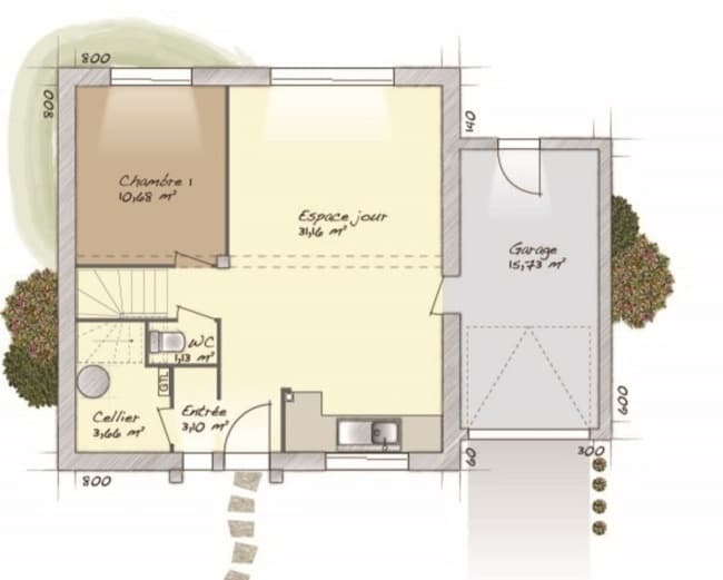
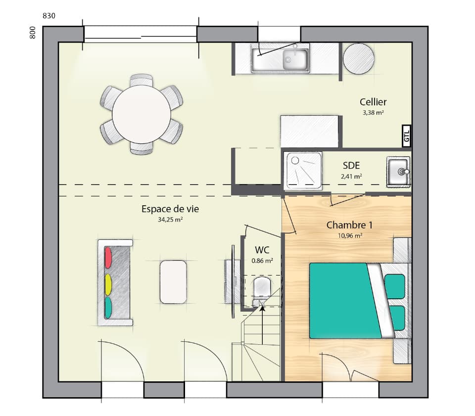
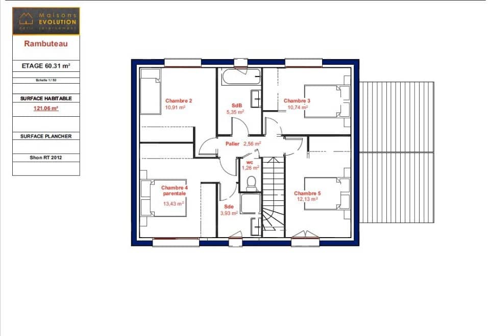
Vaujours : maison F6 (98 m²) en vente MAISON 6 PIÈCES NEUVE - PROCHE DE PARIS En vente : à quelques minutes du RER B (station Vert Galant, 25 min de Paris), nous sommes heureux de vous présenter cette maison de 6 pièces de 98 m² et de 350 m² de terrain à Vaujours (93410). Cette maison comporte 2 niveaux. Son intérieur compte quatre chambres, une cuisine et une salle de bains. La maison est neuve. L'École Maternelle les Marlieres, l'École Élémentaire Paul Bert et le Collège Romain Rolland sont implantés à moins de 10 minutes à pied. Niveau transports, on trouve le RER B et E ainsi que 30 gares à moins de 10 minutes en voiture. Il y a une bibliothèque, une boulangerie, des commerces, un supermarché, une épicerie et une boucherie-charcuterie à quelques minutes à peine. Son prix de vente est de 356 500 €. N'hésitez pas à prendre contact avec Sébastien DARTEVELLE (tél : 06-24-63-58-60) pour obtenir de plus amples informations sur cette propriété.











