

- Prix
- 356 000 €
Maison neuve • Betton (35)
- Nom et prix
- Terrain à bâtir Betton (35830) • 356 000 €
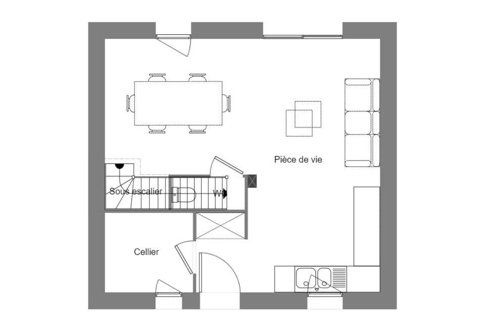
VENTE : maison de 4 pièces (88 m²) à Betton IDÉALEMENT SITUÉE - MAISON 4 PIÈCES NEUVE À 49 km de la Manche et à 8 km de Rennes, nous sommes heureux de vous présenter en vente, idéalement située dans Betton (35830), cette maison de 4 pièces de 88 m² et de 441 m² de terrain avec vue sur jardin. C'est une maison de 2 niveaux. Elle inclut trois chambres, une cuisine et une salle de bains. Cette maison est neuve. Cette maison est située dans un secteur recherché. Plusieurs écoles (maternelle, élémentaire, primaire et collège) sont implantées à moins de 10 minutes à pied, tout comme deux crèches. Niveau transports en commun, il y a la gare Betton à quelques pas de la maison. L'autoroute A84 et les nationales N136 et N157 sont accessibles à moins de 9 km. On trouve une bibliothèque, un tennis, des commerces, des boulangeries, une supérette et un bureau de poste dans les environs. Son prix de vente est de 356 000 €. Prenez contact avec Dimitri MESAS (02-99-83-07-20) pour obtenir de plus amples informations sur le bien, sur les démarches à suivre ou sur les modalités de vente. Faites de vos projets immobiliers une réalité avec Maisons de l'Avenir Cesson-Sévigné.










