

- Prix
- 880 000 €
Maison neuve • Bry-sur-Marne (94)
- Nom et prix
- Terrain à bâtir () • 880 000 €
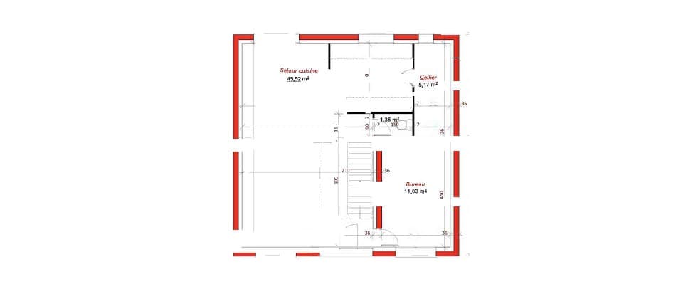
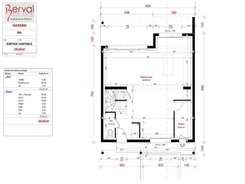
VENTE : maison de 7 pièces (152 m²) à Bry-sur-Marne PROCHE DE PARIS - MAISON 7 PIÈCES NEUVE À proximité du RER A (10 min de Paris), à vendre à Bry-sur-Marne (94360), Maisons Berval Le Perreux-sur-Marne vous propose cette maison de 7 pièces de 152 m². C'est une maison de 2 niveaux. Elle comporte quatre chambres, une cuisine et deux salles de bains. Cette maison est neuve. Le terrain de la propriété est de 400 m². Plusieurs écoles (maternelle, élémentaire, primaire et collège) sont implantées à moins de 10 minutes à pied, tout comme trois crèches. Niveau transports en commun, on trouve le RER A, E, D et C ainsi que 26 gares à moins de 10 minutes en voiture. Il y a une bibliothèque, un tennis, des boulangeries, des commerces, trois supermarchés, des boucheries-charcuteries et un bureau de poste à quelques minutes. 2 marchés animent les environs. Son prix de vente est de 880 000 €. Contactez notre agence (Franck THAREAU : 01-48-81-08-79) pour plus de renseignements sur la maison. Faites de vos projets immobiliers une réalité avec Maisons Berval Le Perreux-sur-Marne.










