

- Prix
- 187 072 €
Maison neuve • 5 rue de la gare (95)
- Nom et prix
- Projet de construction d'une maison 132 m² avec terrain à PERSAN (95) • 187 072 €
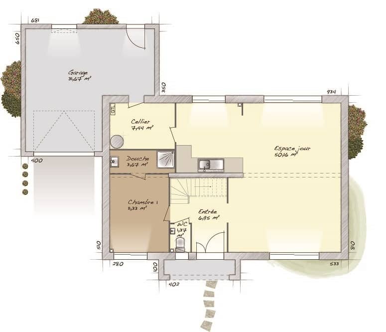
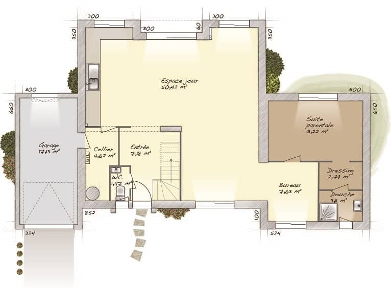
A PERSAN sur un terrain de 400 m², MAISONS SESAME vous propose de réaliser cette maison neuve d'une surface de 132 m² habitables avec 5 chambres. Le modèle PYROPE 130 4 pans est une maison de 132 m², dotée d'un toit à 4 pans qui lui confère un design cossu et une silhouette élégante avec son fronton et son porche rentrant. Ce toit spécifique apporte une touche de caractère et d'originalité à l'ensemble de la maison. Au rez-de-chaussée, vous trouverez un bureau, idéal pour travailler à domicile, ainsi qu'une entrée spacieuse qui mène à un grand séjour lumineux, ouvert sur une cuisine pratique. Ce niveau comprend également un WC séparé. À l’étage, les quatre chambres sont bien agencées, dont une suite parentale avec sa propre salle de douche. Le modèle PYROPE 130 4 pans offre un parfait équilibre entre confort, fonctionnalité et esthétique. MAISONS SÉSAME vous propose les prestations suivantes : - Plans des maisons modulables et adaptables selon vos besoins et les spécificités de votre terrain - Large choix de systèmes de chauffage performants et économes en énergie - Sélection de matériaux de qualité garantissant confort et durabilité - Accompagnement sur-mesure pour la recherche et l’acquisition de votre terrain - Construction conforme à la réglementation en vigueur et à la norme RE2020 - Maisons certifiées NF HABITAT, gage de qualité, de performance et de confort Demandez une étude gratuite et personnalisée de votre projet de construction ! Étude gratuite de votre projet de construction ! De nombreux terrains disponibles dans votre secteur. Informations légales : Maisons Sésame, constructeur de maisons individuelles, propose une sélection de terrains en collaboration avec ses partenaires fonciers, sous réserve de disponibilité. Il n’agit pas en tant que mandataire pour la vente de ces terrains. Nos maisons, certifiées NF Habitat et conformes à la réglementation thermique en vigueur, vous garantissent un habitat durable et économe en énergie. Découvrez un large choix de modèles adaptés aux besoins de toute la famille. Informations tarifaires : Les prix indiqués sont donnés à titre indicatif et n’incluent pas les frais annexes (frais de notaire, raccordements, etc.). Les visuels et prix présentés sont non contractuels. Pour plus de détails, consultez nos conditions en agence. N° ORIAS IOBSP 13007108 – RCS Versailles 388 867 426. Les informations sur les risques auxquels ce bien est exposé sont disponibles sur le site Géorisques : www.georisques.gouv.fr Cette annonce a été créée et diffusée avec le logiciel VITAHOME. Contactez Rosanna MEZIANI au 06 59 31 66 48 ou au 01 82 20 01 50 (Maisons Sésame - Agence de Coignières).













