

- Prix
- 269 550 €
Maison neuve • Grisy-Suisnes (77)
- Nom et prix
- Terrain à bâtir Grisy-Suisnes (77166) • 269 550 €
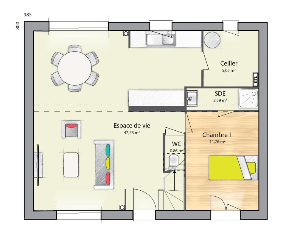
Contactez Guillaume Bordes de l'agence Maisons Evolution de Mareuil-lès-Meaux au 06.22.93.94.71 pour avoir plus d'informations sur ce projet. Découvrez cette belle maison d'une superficie de 90 m² habitables avec garage intégré idéalement située sur la commune de Grisy-Suisnes. Elle est composée de 4 chambres, d'une salle de bains, de deux WC, et d'un grand salon-séjour lumineux avec cuisine ouverte, cellier et garage. Les plans sont modifiables selon vos souhaits, en agence ou visioconférence. Nous vous proposons un véritable accompagnement de qualité tout au long de votre projet. Dessinons ensemble votre future maison ! Tel: 06.22.93.94.71










