

- Prix
- 322 700 €
Maison neuve • Trilport (77)
- Nom et prix
- Terrain à bâtir () • 322 700 €
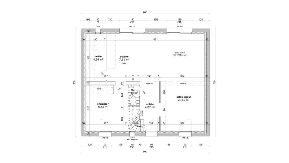
Contactez Guillaume Bordes de l'agence Maisons Evolution de Mareuil-lès-Meaux au 06.22.93.94.71 pour avoir plus d'informations sur ce projet. Jolie maison à combles aménagés d'une superficie de 92 m² habitables avec garage intégré idéalement située sur la commune de Trilport. Elle est composée de 3 chambres, d'une salle de bains, d'un dressing, de deux WC, et d'un grand salon-séjour lumineux avec cuisine ouverte, cellier et garage. Les plans sont modifiables selon vos souhaits, en agence ou visioconférence. Nous vous proposons un véritable accompagnement de qualité tout au long de votre projet. Dessinons ensemble votre future maison ! Tel: 06.22.93.94.71











