

- Prix
- 301 321 €
Maison neuve • Isles-lès-Villenoy (77)
- Nom et prix
- Terrain à bâtir () • 301 321 €
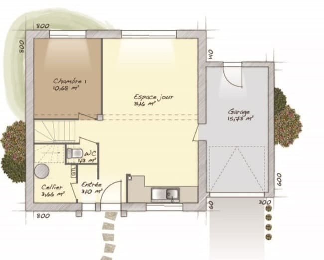
VENTE d'une maison T6 (98 m²) à Isles-lès-Villenoy MAISON 6 PIÈCES NEUVE - PROCHE DE MONTREUIL À deux pas du Transilien P (gare d'Esbly, 30 min de Paris), nous vous présentons en vente à Isles-lès-Villenoy (77450), cette maison de 6 pièces de 98 m². Son intérieur est composé de quatre chambres, d'une cuisine et d'une salle de bains. Le terrain du bien est de 340 m². Cette maison compte 2 niveaux. Elle est neuve. Il y a l'École Primaire Chevance à moins de 10 minutes à pied. Niveau transports, on trouve la ligne de RER A (Chessy-Marne-La-Vallée) ainsi que huit gares à moins de 10 minutes en voiture. Il y a une bibliothèque et deux commerces dans les environs. Son prix de vente est de 301 321 €. N'hésitez pas à prendre contact avec notre agence (Sébastien DARTEVELLE : 06-24-63-58-60) pour toute information sur la maison, sur les démarches à suivre ou sur les modalités de vente.











