
Maison neuve • Vallangoujard (95)
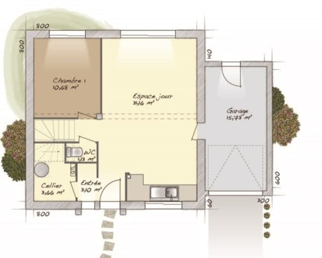
VENTE : maison de 4 pièces (50 m²) à Vallangoujard IDÉALEMENT SITUÉE - VUE SANS VIS-À-VIS En vente : à proximité de la gare de L'Isle-Adam-Parmain (Paris à 50 min par le Transilien H), nous sommes ravis de vous présenter cette maison de 4 pièces de 50 m² et de 783 m² de terrain sans vis-à-vis idéalement située dans Vallangoujard (95810). Conçue de plain-pied, elle comporte deux chambres, une cuisine et une salle de bains. C'est une maison de plain-pied. Elle est neuve. La maison est située dans un secteur prisé. L'École Primaire Publique Grangeon se trouve à moins de 10 minutes à pied. Côté transports, il y a 13 gares à moins de 10 minutes en voiture. On trouve un tennis et une bibliothèque à proximité du logement. Son prix de vente est de 259 000 €. N'hésitez pas à prendre contact avec Mylann URBANSKY (tél : 06-23-32-28-23) pour obtenir de plus amples renseignements sur la maison, sur les démarches à suivre ou sur les modalités de vente. Concrétisez vos projets immobiliers avec Maisons Balency Baillet-en-France.
Proposé par MAISONS BALENCY - YVELINES










