

- Prix
- 275 000 €
Maison neuve • Genvry (60)
- Nom et prix
- Terrain à bâtir () • 275 000 €
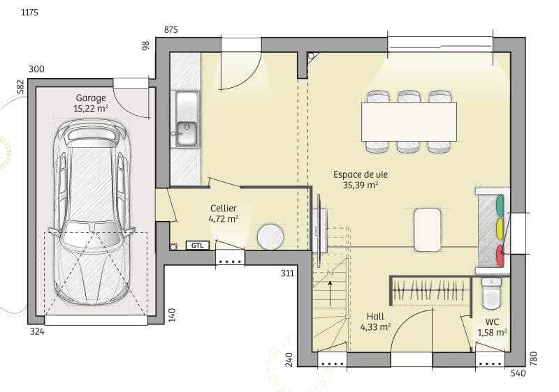
Terrain à bâtir entièrement viabilisé situé sur la charmante commune de GENVRY, située à 5 min de NOYON, d'une superficie de 1203 m²,plat, idéalement situé, avec une grande façade sur rue. Exemple de projet maison de type R+1 de 90 m² avec 3 Chambres à l'étage avec 1 salle de bain et 1 WC séparé. Le tout avec un garage accolé. Tous nos projets sont entièrement réalisés sur-mesure, de nombreuses prestations incluses: baies coulissantes en aluminium, volets roulants intégrés à la maçonnerie (non-apparents) motorisés. Entrée, cuisine, pièce de vie, cellier et pièces d'eau carrelés, maison prête à décorer, clef en main. Pompe à chaleur ou pompe à chaleur hybride (gaz) dernière génération (classe énergétique A+), plancher chauffant RDC (et ETAGE), sèche-serviettes, plusieurs choix de menuiseries intérieures, construction en brique. RE 2020. Projet terrain + maison + frais annexes. Pour tout renseignement contacter XAVIER de l'agence Maisons France Confort : 06 16 27 53 27