

- Prix
- 379 817 €
Maison neuve • Antony (92)
- Nom et prix
- Terrain à bâtir Antony (92160) • 379 817 €
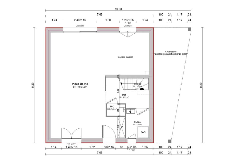
Le modèle présenté est l'Etage 96 m² habitable issue de notre nouvelle gamme et adapté pour des terrains ayant une façade de 8 à 12 ml ou plus. Vous accédez directement dans une pièce de vie de plus de 40 m² avec un espace cuisine ouvert. un espace placard dans al partie entrée est compris également. Un dégagement dessert les WC, un cellier pour les moyens de chauffage mais aussi votre buanderie et réserve. A l'étage, vous disposez de 3 chambres dont deux de près de 11m² m² et une suite parentale, de WC indépendants et d'une salle de bains avec baignoire et douche. Il sera possible de prévoir en option une extension par des combles ammégeables pour y réaliser dans un second temps un bureau ou bien encore salle de jeux etc Ce modèle est une exclusivité MAISONS BALENCY ' Pavillon témoin de la ville du bois' Réalisation qui pourra s'adapter au terrain ayant une façade de 8 à 12 ml Exceptionnel réalisation de votre maison individuelle ( sur limite mais non mitoyenne d'une autre réalisation, sans vis a vis) au prix d'un appartement !!! à deux pas d 'Antonny!, a découvrir sans plus tarder. Prix proposé hors frais de notaires ( prévoir env 14800 € ), hors adaptationsaux sols éventuelles et hors décoration











