

- Prix
- 355 000 €
Maison neuve • Courteuil (60)
- Nom et prix
- Terrain à bâtir () • 355 000 €
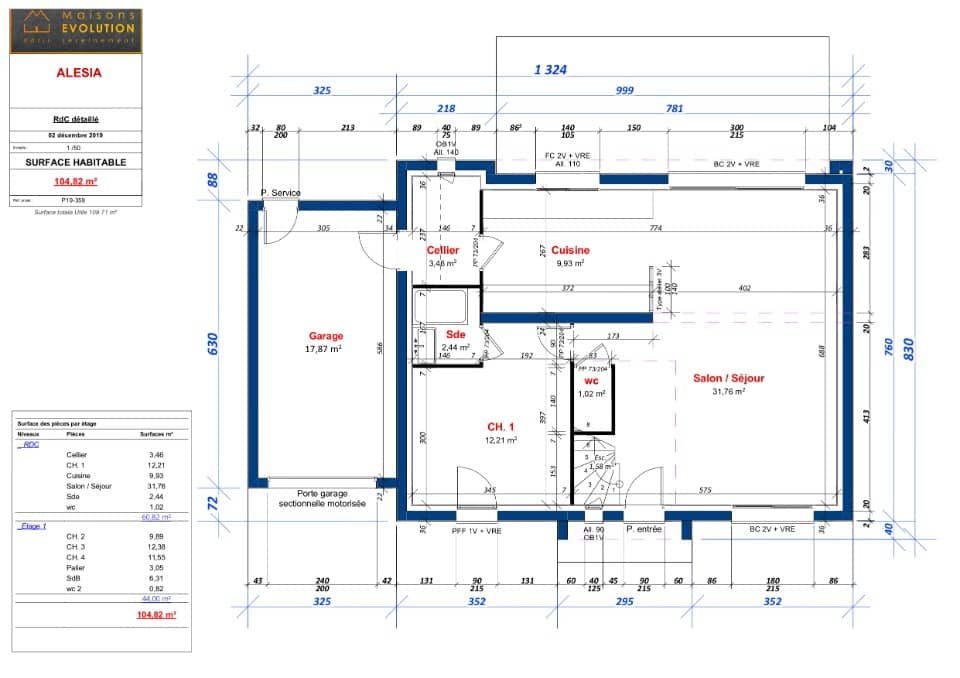
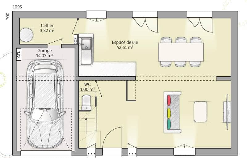
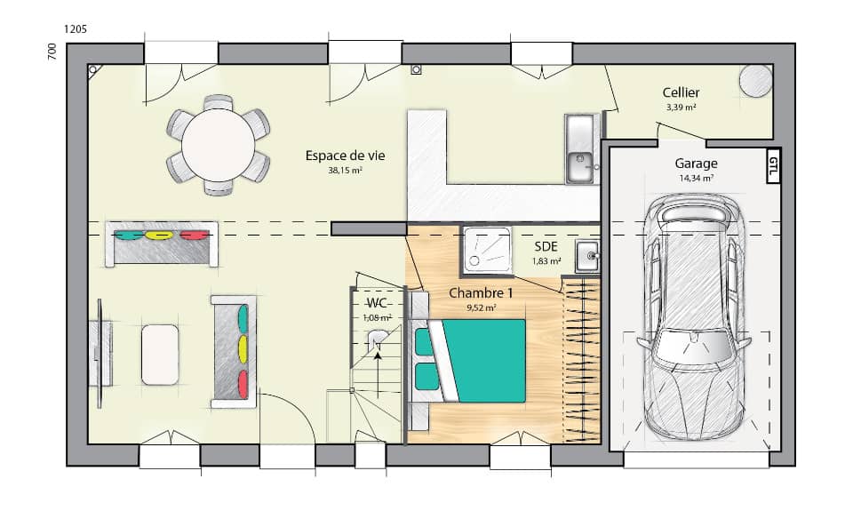
Venez concevoir votre projet de construction avec Maisons France Confort sur un terrain à bâtir entièrement viabilisé situé à COURTEUIL, située entre SENLIS et CHANTILLY, d'une superficie de 565 m²,plat, idéalement situé, avec une belle façade de 21 ml. Exemple de projet maison de type Plain Pied de 85 m² m2 loi Carrez avec garage intégré. Tous nos projets sont entièrement réalisés sur-mesure, de nombreuses prestations incluses: baies coulissantes en aluminium, volets roulants intégrés à la maçonnerie (non-apparents) motorisés. Entrée, cuisine, pièce de vie, cellier et pièces d'eau carrelés, maison prête à décorer, clef en main. Pompe à chaleur ou pompe à chaleur hybride (gaz) dernière génération (classe énergétique A+), plancher chauffant RDC (et ETAGE), sèche-serviettes, plusieurs choix de menuiseries intérieures, construction en brique. RE 2020. Projet terrain + maison + frais annexes. Pour tout renseignement contacter XAVIER de l'agence Maisons France Confort : 06 16 27 53 27











