

- Prix
- 269 870 €
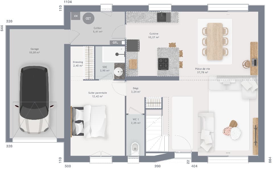
Maison neuve • Acy-en-Multien (60)
- Nom et prix
- Terrain à bâtir () • 269 870 €
Belle maison de plain pied , normes RE 2020 , située au coeur de Acy en Multien , sur un terrain de 773m² . Environnement calme et verdoyant , en retrait de rue , à 5 minutes à pieds de toutes les commodités , et seulement 30 minutes des pistes de Roissy . A l intérieur : Chambres avec rangements intégrés , séjour traversant , salle d eau équipée ... Nombreuses prestations incluses : Baie aluminium , carrelage 45x45 , volets roulants intégrés à la maçonnerie , packs alarme et domotique . Accompagnement intégral : Recherche du financement , étude technique de la parcelle , gestion administrative . Rendez vous à votre domicile ou en agence . Contactez moi pour une étude personnalisée et gratuite . VERON ANTHONY /07/77/85/58/88/











